Grand period house with expansive gardens ideal for large families.
• B‑listed Edwardian Arts & Crafts house with strong period features
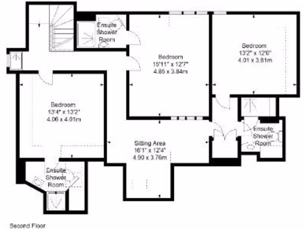
• Approximately 6,413 sq ft including eight en‑suite bedrooms
• Circa 1.5 acres of mature landscaped gardens and orchard
• Large triple garage with kitchen annexe; potential self‑contained use
• Basement includes plant room, biomass hopper and wine cellar
• EPC rating F — significant energy improvements likely required
• Listed status will restrict alterations and can complicate repairs
• Located near Galashiels; area shows high levels of local deprivation
Maplehurst is an exceptional B‑listed Edwardian Arts & Crafts house offering about 6,413 sq ft of flexible family accommodation across three floors, set within c.1.5 acres of mature, landscaped gardens. The property’s original craftsmanship — high ceilings, stained glass, tapestry sitting room and ornate panelling — creates a rare period home with grand reception rooms and extensive private grounds including orchard, terraces and a croquet lawn.
Accommodation suits a large family or a household seeking guest or staff space: eight double bedrooms all with en‑suite facilities, generous reception rooms that flow from the central sitting room, and a sizeable basement with plant room, wine cellar and biomass hopper. A large triple garage with a kitchen annexe provides potential for a home office, gym, workshop or self‑contained accommodation.
Buyers should note this is B‑listed, which will restrict some alterations and can complicate maintenance and consent for works. The EPC is F, so heating and energy improvements are likely to be needed to reduce running costs. The property sits in a very deprived area statistically, despite being conveniently close to Galashiels town centre and within easy drive of Melrose and Edinburgh.
Overall, Maplehurst will suit purchasers looking for a characterful, substantial family home with grounds and scope for sympathetic upgrading. It rewards buyers willing to manage listed‑building obligations and invest in energy efficiency works to future‑proof the house.
4 bedroom detached house for sale in The Maples, 19 Heatherlie Park, Selkirk, TD7 — £495,000 • 4 bed • 3 bath • 1835 ft²
6 bedroom semi-detached house for sale in Sunnyhill Road, Hawick, Scottish Borders, TD9 — £525,000 • 6 bed • 3 bath • 3683 ft²
5 bedroom detached house for sale in Ormiston Terrace, Melrose, Scottish Borders, TD6 — £1,150,000 • 5 bed • 3 bath • 3448 ft²
4 bedroom detached house for sale in Innerleithen, Scottish Borders, EH44 — £825,000 • 4 bed • 2 bath • 4157 ft²
Land for sale in Portmore Estate - Lot 1, Peebles, Scottish Borders, EH45 — £5,000,000 • 18 bed • 13 bath • 17234 ft²
6 bedroom detached house for sale in Kirklands House, Melrose, Scottish Borders, TD6 — £1,100,000 • 6 bed • 3 bath • 5635 ft²






































































































































































































