Large lower-ground two-bed with private garden and period charm, ideal for first-time buyers.
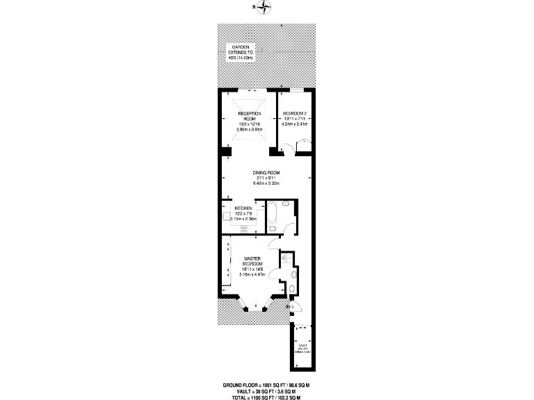
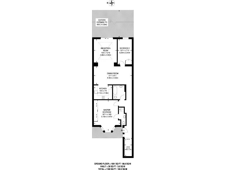
Approximately 1,100 sq ft of well-proportioned living space
Bright, spacious and garden-facing, this two-bedroom lower ground maisonette in Brackenbury Village combines period character with contemporary living. The bay-fronted master bedroom with en suite and a generous reception room give the feel of a larger home, while the modern open-plan kitchen provides an efficient, sociable workspace. A large private garden is a standout feature for the area, ideal for entertaining, children or urban gardening.
Set within a handsome pre-1900 conversion, the property benefits from double glazing, a mains gas boiler and sizeable rooms across approximately 1,100 sq ft. Local amenities, good schools and quick links into Hammersmith and Shepherd's Bush make this a practical choice for first-time buyers seeking space and outdoor access in West London.
Buyers should note this is a lower ground floor flat: natural light is good courtesy of patio access and a contemporary skylight, but window-level and privacy differ from a raised ground property. The building’s solid-brick construction likely means limited original wall insulation, so buyers may want to budget for energy-efficiency improvements. Crime rates in the immediate area are above average; prospective purchasers should satisfy themselves on security measures.
Freehold tenure, very low flood risk and excellent local broadband and mobile signal are practical advantages. Overall, the home offers a rare combination of garden space, generous internal area and period charm — with straightforward upgrade opportunities to increase comfort and efficiency.
2 bedroom flat for sale in Hammersmith Grove, Brackenbury Village, W6 — £855,000 • 2 bed • 2 bath • 1000 ft²
2 bedroom apartment for sale in Hammersmith Grove, London, W6 — £750,000 • 2 bed • 2 bath • 950 ft²
2 bedroom flat for sale in Hammersmith Grove, London W6 — £855,000 • 2 bed • 2 bath • 1091 ft²
2 bedroom maisonette for sale in Hammersmith Grove, Brackenbury Village, W6 — £625,000 • 2 bed • 1 bath • 850 ft²
2 bedroom flat for sale in Beauclerc Road, Hammersmith W6 — £599,950 • 2 bed • 1 bath • 793 ft²
3 bedroom flat for sale in Hammersmith Grove, Hammersmith, London, W6 — £750,000 • 3 bed • 2 bath • 835 ft²














































































