Three-bedroom freehold close to town centre, ideal for first-time buyers or investors..
Chain-free three-bedroom freehold within walking distance to town and station
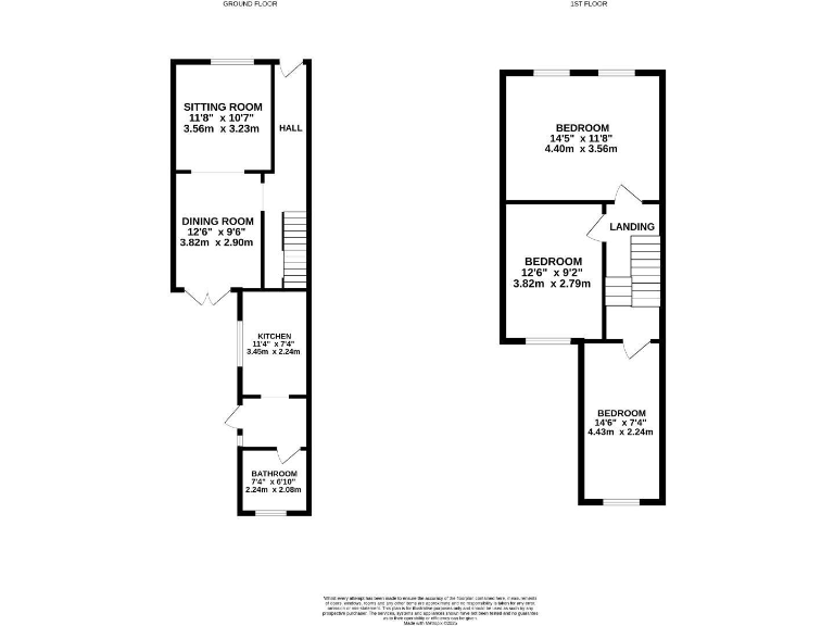
Two reception rooms plus galley kitchen and ground-floor bathroom
Decked patio garden; small external plot and on-street parking
Retains period features: high ceilings, arched entry, wood flooring
Requires cosmetic renovation; kitchen and bathroom likely need updating
Solid brick walls — assumed no cavity insulation, may need upgrading
Sold by Modern Method of Auction — reservation fee and buyer pack apply
Approx 980 sq ft; suitable for first-time buyer or buy-to-let investor
This three-bedroom end-of-terrace on Hone Street offers a straightforward project in a central Strood location. The property is freehold, chain-free and sits close to the town centre and train station, making it practical for commuters or buyers seeking convenient urban living. The layout includes a through lounge/diner, separate dining room, galley kitchen, ground-floor bathroom and three first-floor bedrooms.
The house retains period character such as high ceilings and an arched entry, with a decked patio garden and double glazing already in place. At about 980 sq ft, rooms are small-to-average, suitable for a small family, first-time buyer or buy-to-let investor. Services include mains gas boiler heating and mains drainage; flood risk is very low and Council Tax band is modest.
The property requires cosmetic updating and likely some modernisation to kitchen and bathroom fittings; walls are original solid brick and may lack insulation. It will be sold via the Modern Method of Auction — buyers should budget for a non-refundable reservation fee and a Buyer Information Pack fee, and factor auction timescales into purchase plans. Keys are held for immediate viewings.
3 bedroom terraced house for sale in Martin Road, Rochester, Kent, ME2 — £260,000 • 3 bed • 1 bath • 1083 ft²
3 bedroom end of terrace house for sale in Weller Avenue, ROCHESTER, Kent, ME1 — £250,000 • 3 bed • 1 bath • 925 ft²
3 bedroom terraced house for sale in Hillcrest Road, Chatham, ME4 — £250,000 • 3 bed • 2 bath • 917 ft²
3 bedroom terraced house for sale in Fulmar Road, ROCHESTER, Kent, ME2 — £270,000 • 3 bed • 1 bath • 671 ft²
3 bedroom end of terrace house for sale in Darnley Road, Rochester, Kent, ME2 — £250,000 • 3 bed • 1 bath
3 bedroom terraced house for sale in Wickham Street, Rochester, Kent, ME1 — £230,000 • 3 bed • 1 bath • 722 ft²


























































