Spacious terrace with large garden and scope to modernise.
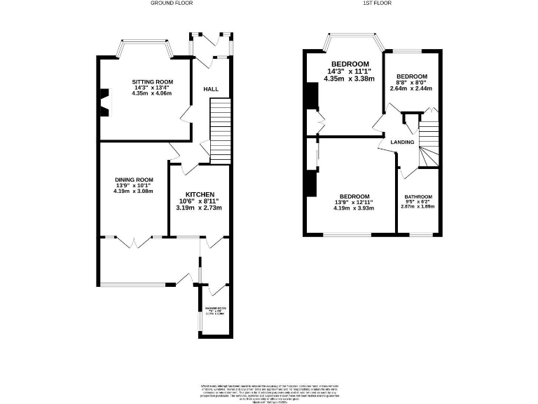
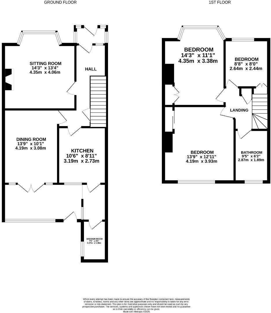
Three bedrooms with two reception rooms and two bathrooms
This bay-fronted three-bedroom terraced house on Hillcrest Road offers a spacious layout for a first home or a family seeking room to grow. The property includes two reception rooms, a ground-floor shower room plus an upstairs bathroom, and a large rear garden that is rare for a terrace of this size. Period features such as an Edwardian hallway and high ceilings add character and scope for sympathetic restoration.
Internally the accommodation is liveable but shows signs of age and will benefit from modernisation — kitchens, bathrooms and some bedrooms appear dated. Double glazing and gas central heating are in place, and the filled cavity walls suggest reasonable thermal performance with potential to improve energy efficiency. The plot is decent and provides scope to extend rearwards subject to planning, which could increase value.
Location is a clear strength: walking distance to local transport links and close to several primary and highly rated secondary schools. Broadband and mobile signal are strong, supporting home working and family needs. Note the local area is classified as deprived with average crime levels, which buyers should weigh up alongside the convenience and nearby amenities.
Important sale details: this property is offered via the Modern Method of Auction. The buyer will sign a Reservation Agreement, pay a non-refundable Reservation Fee of 4.5% (minimum £6,600) and must complete within 56 days. A Buyer Information Pack must be viewed prior to bidding (fee £349). If you need a mortgage, obtain lender advice and inspect carefully before bidding.
3 bedroom terraced house for sale in Rochester Street, Chatham, Kent, ME4 — £325,000 • 3 bed • 1 bath • 948 ft²
3 bedroom terraced house for sale in Victoria Road, Chatham, ME4 — £230,000 • 3 bed • 1 bath • 1052 ft²
3 bedroom end of terrace house for sale in Upper Luton Road, Chatham, Kent, ME5 — £160,000 • 3 bed • 1 bath • 806 ft²
5 bedroom detached house for sale in Maidstone Road, Chatham, Kent, ME4 6DP, ME4 — £625,000 • 5 bed • 2 bath • 2971 ft²
3 bedroom end of terrace house for sale in Hone Street, Rochester, ME2 — £210,000 • 3 bed • 1 bath • 980 ft²
3 bedroom terraced house for sale in Waghorn Street, Chatham, ME4 — £220,000 • 3 bed • 1 bath • 770 ft²






















































