Historic family estate with paddocks and lake, ideal for equestrian owners.
Grade II listed Georgian country house with extensive period features
Totalling 32.74 acres with paddocks, lake and equestrian potential
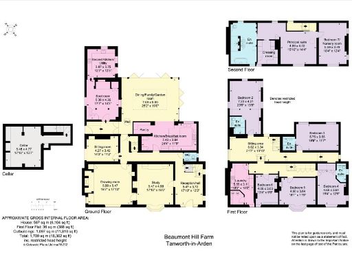
Seven bedrooms plus detached one‑bed flat above double garage
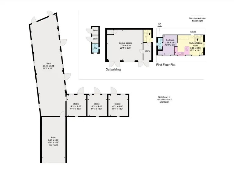
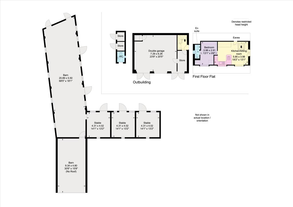
Multiple outbuildings including threshing barn, stables and modern warehouse
Previous planning for barn conversions lapsed; new permissions required
Modern warehouse limited to agricultural/farm office use by condition
Solid brick construction with assumed poor insulation; upgrading likely needed
Very high council tax and substantial ongoing maintenance costs
Beaumont Hill Farm is a rare Grade II listed Georgian country estate set in 32.74 acres of paddocks, formal gardens and a lakeside setting. The main house offers grand, characterful family accommodation across three floors including seven bedrooms, principal suite with dressing room, five reception rooms and period details such as exposed beams and original fireplaces. A detached one‑bed flat above a double garage provides optional staff or rental accommodation.
The estate includes substantial outbuildings — a threshing barn, stables and a modern steel‑frame warehouse with office — giving genuine equestrian or small‑holding potential. Several former planning permissions for conversion of barns to dwellings were granted and extended but have now lapsed, so redevelopment would require fresh planning. Note the modern warehouse is restricted to agricultural use by condition.
Practical considerations are important. Listed status will restrict alterations and can make change-of-use or redevelopment more complex. The house is of solid brick construction with assumed little built‑in insulation and secondary glazing, so thorough upgrading and ongoing maintenance will be needed. Council tax is very expensive and running costs for a property of this scale will be significant.
This property suits an established family seeking a substantial country home with scope for equestrian use, garden enjoyment and careful renovation — or a buyer prepared to reinstate and progress planning for the outbuildings. It offers a private, well‑connected rural lifestyle close to Solihull and good road and rail links, but requires a buyer comfortable with the responsibilities of a listed estate and large‑scale upkeep.
5 bedroom detached house for sale in Portway Lane, Harlaston, B79 — £1,250,000 • 5 bed • 3 bath • 5096 ft²
5 bedroom detached house for sale in Hall Lane, Hammerwich, Nr Lichfield, WS7 — £1,750,000 • 5 bed • 3 bath • 4223 ft²
6 bedroom village house for sale in Hodgetts Lane, Berkswell, Coventry, West Midlands, CV7 — £1,650,000 • 6 bed • 3 bath • 3930 ft²
8 bedroom village house for sale in Breach Oak Lane, Corley, Coventry, Warwickshire, CV7 — £1,600,000 • 8 bed • 4 bath • 9451 ft²
5 bedroom detached house for sale in Moat Farm Lane, Ullenhall, B95 — £1,750,000 • 5 bed • 3 bath • 12930 ft²
4 bedroom detached house for sale in Bulls Lane, Wishaw, Sutton Coldfield, Warwickshire, B76 — £3,000,000 • 4 bed • 4 bath • 2930 ft²










































































































































































































































































































































































































































































































































































































































































































































