Spacious period property with garden and strong transport links.
Chain free Victorian terrace opposite Victoria Park
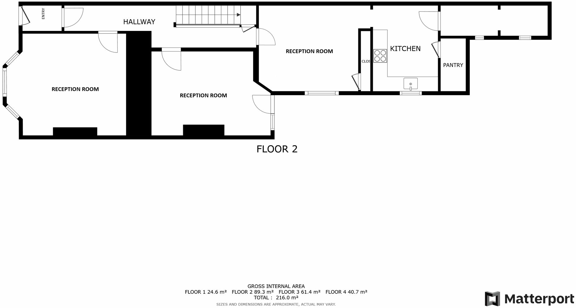
This three-storey Victorian terrace on St James Road offers generous living space across 1,851 sq ft, with four double bedrooms and three reception rooms. Period features — bay windows, stained glass, original doors and high ceilings — give the house character and strong curb appeal. It’s offered chain free and sits opposite Victoria Park, with good bus links and quick access to Leicester city centre and station.
Practical aspects include gas central heating, a basement with power and extractor, and a courtyard-style rear garden for low-maintenance outdoor space. The property has part double glazing and an EPC rating of D. Layout and room sizes suit family living or multi-occupancy rental; the nearby mix of young families and students supports either use.
Buyers should note the home’s age and solid-brick construction mean thermal upgrades are likely needed — walls appear uninsulated — and some modernisation would improve energy performance. There is one bathroom plus a separate WC, and the small plot and courtyard garden limit extension options. The local area records higher crime and levels of deprivation, which is reflected in market pricing and should be considered when assessing rental or resale potential.
Overall this is a spacious, characterful property with clear potential for updating or conversion to maximise returns. It will suit buyers seeking a period home to modernise or investors targeting long-term rental in a well-connected city location.
3 bedroom terraced house for sale in College Avenue, Off London Road, Leicester, LE2 — £250,000 • 3 bed • 1 bath • 1098 ft²
4 bedroom detached house for sale in St. James Road, Leicester, LE2 — £525,000 • 4 bed • 2 bath • 2230 ft²
2 bedroom terraced house for sale in Granby Road, Leicester, LE2 — £190,000 • 2 bed • 1 bath • 958 ft²
2 bedroom terraced house for sale in Lytton Road, Clarendon Park, Leicester, LE2 — £200,000 • 2 bed • 1 bath • 969 ft²
5 bedroom semi-detached house for sale in Clarendon Park Road, Leicester, LE2 — £600,000 • 5 bed • 1 bath • 1830 ft²
4 bedroom terraced house for sale in Lansdowne Road, Aylestone, LE2 — £300,000 • 4 bed • 1 bath • 1820 ft²














































































