Renovation-led investment near the beach and High Street amenities.
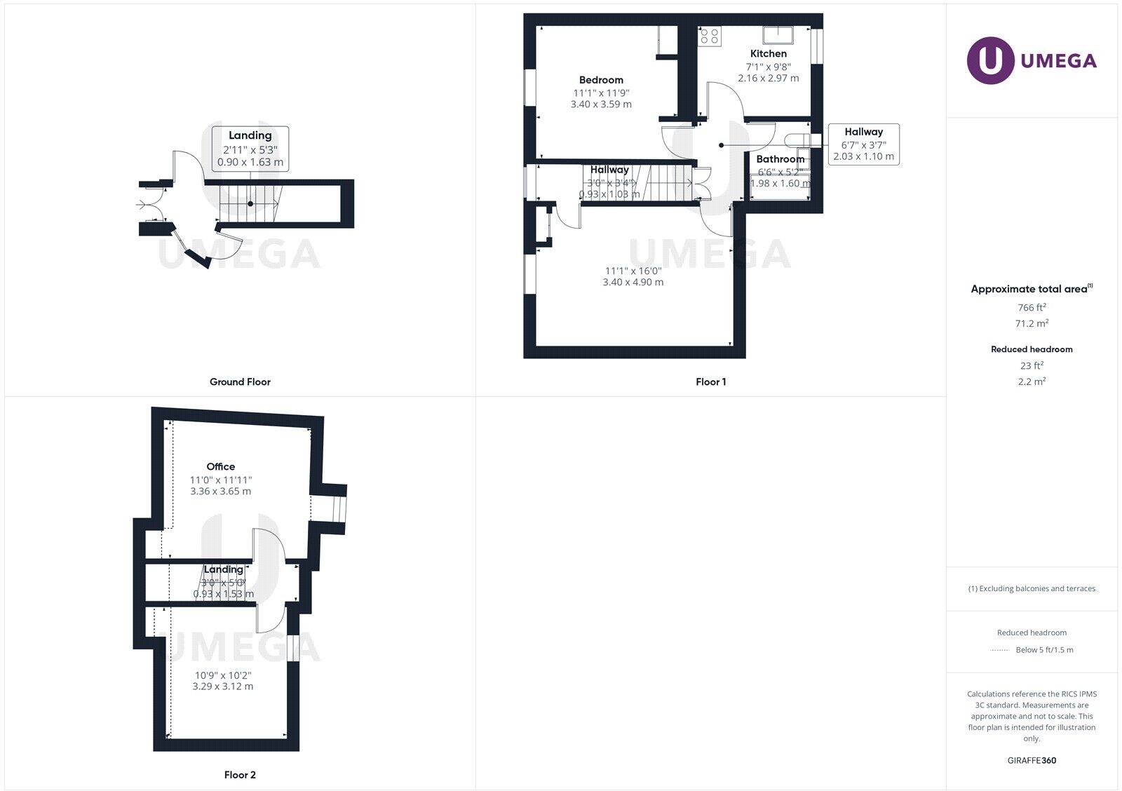
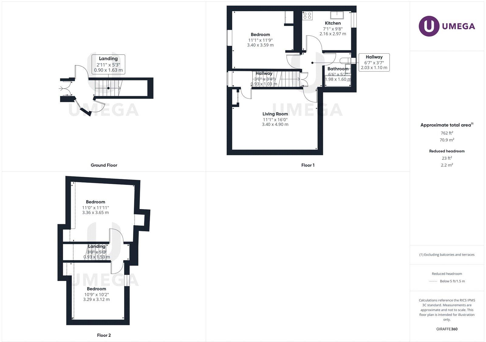
Freehold three-bedroom flat over two floors, unusual tenure for a flat
Central Dunbar location: minutes from High Street, beach, and amenities
Total area 766 sq ft — overall size described as small for layout
Property requires full renovation; kitchen and fittings are dated
Seller owns commercial unit below; combined redevelopment possible (consents needed)
Additional redevelopment cost estimated around £40,000, planning not guaranteed
Excellent mobile signal and fast broadband; good for short-lets or remote working
Wider area classified as very deprived; may affect demand and resale prospects
This two-storey, three-bedroom flat in central Dunbar offers clear potential for an investor or buyer willing to renovate. Arranged over two floors with generous room proportions, the layout provides scope to modernise living spaces, reconfigure the kitchen and maximise rental or resale value. The property is freehold — uncommon for a flat — and sits directly above a commercial unit, opening possibilities for combined redevelopment subject to planning.
The location is a primary selling point: tucked off Dunbar High Street, the beach, shops, cafés and regular bus links to Edinburgh and neighbouring towns are all within easy walking distance. Broadband and mobile signal are excellent, supporting short-term lets or connected modern living. Council tax is low, which helps running costs.
Important drawbacks are clear and factual. The flat needs renovation throughout; the kitchen and bathrooms are dated and some fittings will require replacement. The wider area is classified as very deprived, which may affect demand and price growth. Any redevelopment that ties the flat to the commercial unit below would require planning permission and an additional estimated cost of around £40,000 — there is no guarantee consents would be granted.
This is a practical project rather than a move-in-ready home. For investors or buyers with renovation experience and an appetite for coastal town opportunity, the combination of central location, freehold status and redevelopment potential could deliver strong upside. Those seeking a low-risk, ready-to-live property should note the refurbishment needs and local socio-economic factors before viewing.
3 bedroom apartment for sale in West Port, Dunbar, East Lothian, EH42 — £99,950 • 3 bed • 1 bath • 838 ft²
1 bedroom flat for sale in 73B/4, High Street, Dunbar, EH42 1EW, EH42 — £100,000 • 1 bed • 1 bath • 527 ft²
2 bedroom flat for sale in 148A, High Street, Dunbar, EH42 1JJ, EH42 — £150,000 • 2 bed • 1 bath • 832 ft²
2 bedroom flat for sale in 73b/1 High Street, Dunbar, East Lothian, EH42 1EW, EH42 — £130,000 • 2 bed • 1 bath • 570 ft²
3 bedroom flat for sale in 40C High Street, Dunbar, EH42 1JH, EH42 — £275,000 • 3 bed • 1 bath • 1001 ft²
3 bedroom flat for sale in Flat 3, 15 Market Place, North Berwick, EH39 4JF, EH39 — £420,000 • 3 bed • 2 bath • 1184 ft²


































































































