Blank-canvas coastal flat with strong redevelopment potential subject to consents.
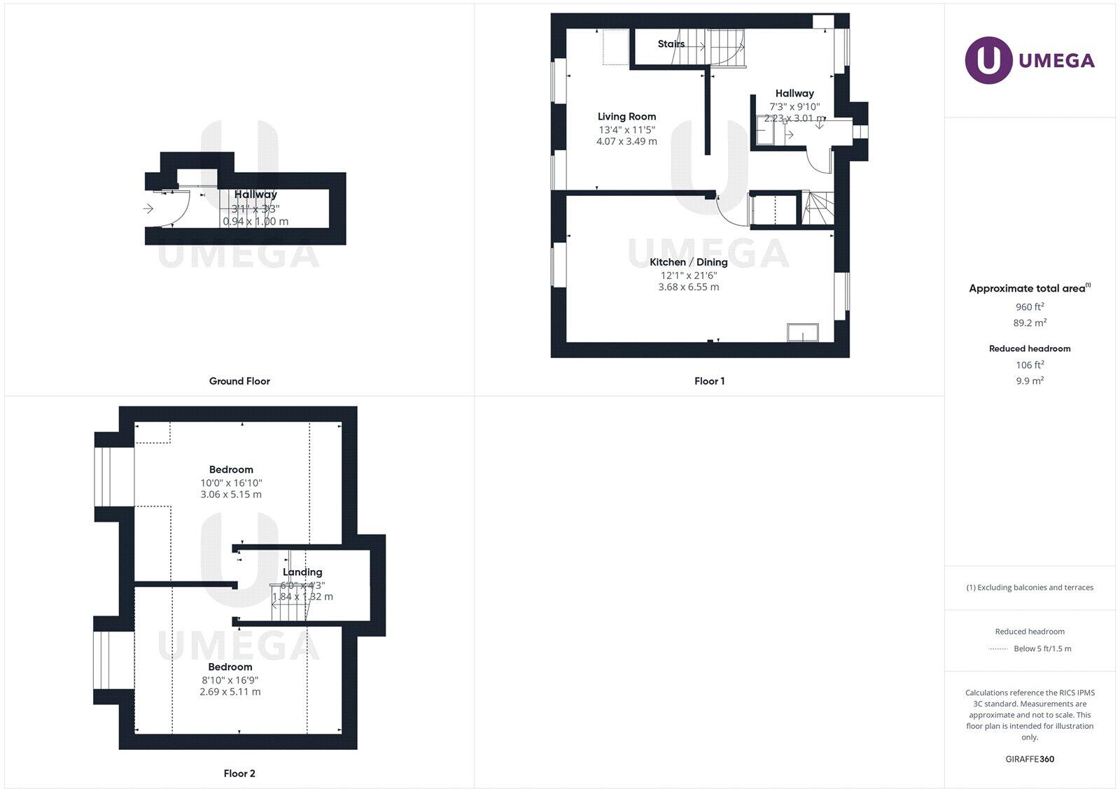
Three-bedroom, two-level apartment with generous room sizes
A substantial two-level, three-bedroom apartment in central Dunbar, offered as a full refurbishment project. The flat is stripped back to a blank canvas with generous room proportions, high Victorian ceilings and clear scope to deliver contemporary layouts or divide into self-contained units subject to planning. Fast broadband and excellent mobile signal suit modern living or short-term rental setups.
Buyers should note the property is currently uninhabitable: there is no kitchen or bathroom, visible damp and mold in places, single-glazed windows and exposed floorboards. A Home Report has not been prepared on professional surveyor advice; an EPC has been provided. Tenure is unknown and the immediate area scores as very deprived, so factor running costs and local demand into any refurbishment budget.
There may be potential for wider redevelopment in conjunction with adjacent properties owned by the same seller; any scheme would need separate negotiation and planning consent. The location is highly convenient — just off Dunbar High Street and close to the beach, shops and local amenities — which supports resale or rental appeal once renovated.
This opportunity suits experienced renovators or investors prepared to manage a full refurbishment. With careful restoration and modernisation, the property could deliver substantial added value and a bespoke coastal home or income-producing asset.
3 bedroom apartment for sale in West Port, Dunbar, East Lothian, EH42 — £120,000 • 3 bed • 1 bath • 766 ft²
1 bedroom flat for sale in 73B/4, High Street, Dunbar, EH42 1EW, EH42 — £100,000 • 1 bed • 1 bath • 527 ft²
1 bedroom flat for sale in 63F High Street, Dunbar, EH42 — £60,000 • 1 bed • 1 bath • 352 ft²
2 bedroom flat for sale in Church Street, Dunbar, East Lothian, EH42 — £125,000 • 2 bed • 1 bath • 672 ft²
2 bedroom flat for sale in Second Floor Flat, 70 High Street, North Berwick, EH39 4HF, EH39 — £190,000 • 2 bed • 1 bath • 592 ft²
2 bedroom flat for sale in 148A, High Street, Dunbar, EH42 1JJ, EH42 — £150,000 • 2 bed • 1 bath • 832 ft²


















































































