TQ6 0LD - 6 bed spacious converted barn in Venn Lane, TQ6 0LD

View on Property Piper

6 bedroom detached house for sale in Edge of Dartmouth, TQ6

Summary - BROOME COURT DARTMOUTH TQ6 0LD

6 bed 5 bath Detached

Characterful, renovated barn home with annexe and almost an acre of gardens.
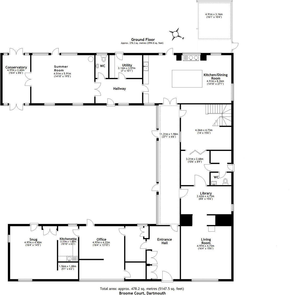
- Over 5,100 sq ft of living space across converted barns and wings
- Nearly 0.9 acre of formal and informal gardens with fruit trees
- 27ft farmhouse kitchen/breakfast room with bespoke units and island
- Self-contained annexe with living room, kitchenette and en-suite bedroom
- Solar panels with Tesla battery storage plus biomass wood-pellet heating
- Private water supply and shared private drainage require upkeep
- Very slow broadband speeds despite excellent mobile signal
- Council Tax band G — relatively high running costs
Broome Court is a rare, extensively renovated barn conversion set about 1 mile from Dartmouth, offering more than 5,100 sq ft of flexible living across barns and wings. The house centres on a sunny Mediterranean-style rose courtyard and wraps around almost an acre of established gardens, patios and fruit trees — ideal for family life, entertaining and hobby gardening. A self-contained guest annexe adds long-term visitor or rental flexibility.

The interior blends original granite walls and exposed timbers with contemporary interventions: an architect-designed glass passageway, a 27ft farmhouse kitchen/breakfast room, five reception rooms and principal bedroom with dressing room and en-suite. Modern sustainability fittings include solar panels with Tesla battery storage and a biomass wood-pellet boiler that serves the heating system, reducing reliance on mains fuels.

Practical factors to note: the property uses private water and a shared private drainage system, and broadband speeds are very slow in this location. The house sits in a remote hamlet setting with very low crime and excellent mobile signal, but it is comparatively isolated from town services. Council Tax is high (Band G) and the biomass system and private services will involve ongoing maintenance responsibilities.

For buyers seeking a characterful country home close to Dartmouth, Broome Court delivers scale, garden privacy and adaptable living spaces. It will particularly suit families or buyers wanting an eco-focused, low-visibility rural property prepared for modern living, provided they accept the trade-offs of remote broadband and the upkeep of private utilities.

Property Details

Brochure Descriptions

Image Descriptions

Floorplan Description

Rooms

Textual Property Features

Target Audience

AI Tags

Detected Visual Features

EPC Details

Nearby Schools

Nearest Bars And Restaurants

,,,,}

Nearest General Shops

,,}

Nearest Grocery shops

,,}

Nearest Supermarkets

,,}

Nearest Religious buildings

,,}

Nearest Medical buildings

,,,}

Nearest Leisure Facilities

,,,,}

Nearest Tourist attractions

,,}

Nearest Train stations

,,,,}

Nearest Bus stations and stops

,,,,}

Nearest Hotels

,,}

Tags

Local Market Stats

AirBnB Data

Similar Properties

Meta

High Res Images

Compatible Images

Low res Images

Thumbnails

Raw Images

High Res Floorplan Images

Compatible Floorplan Images

Low res Floorplan Images

FloorplanImages Thumbnail

Raw Floorplan Images