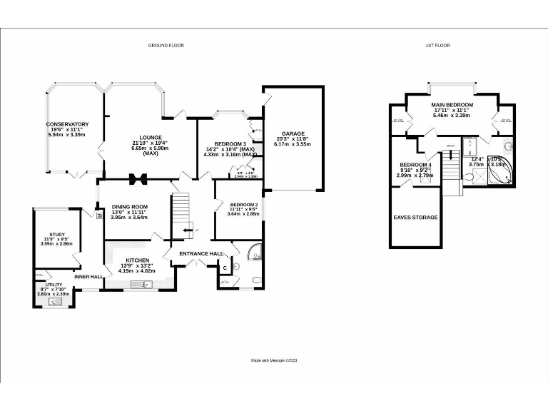
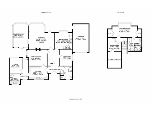
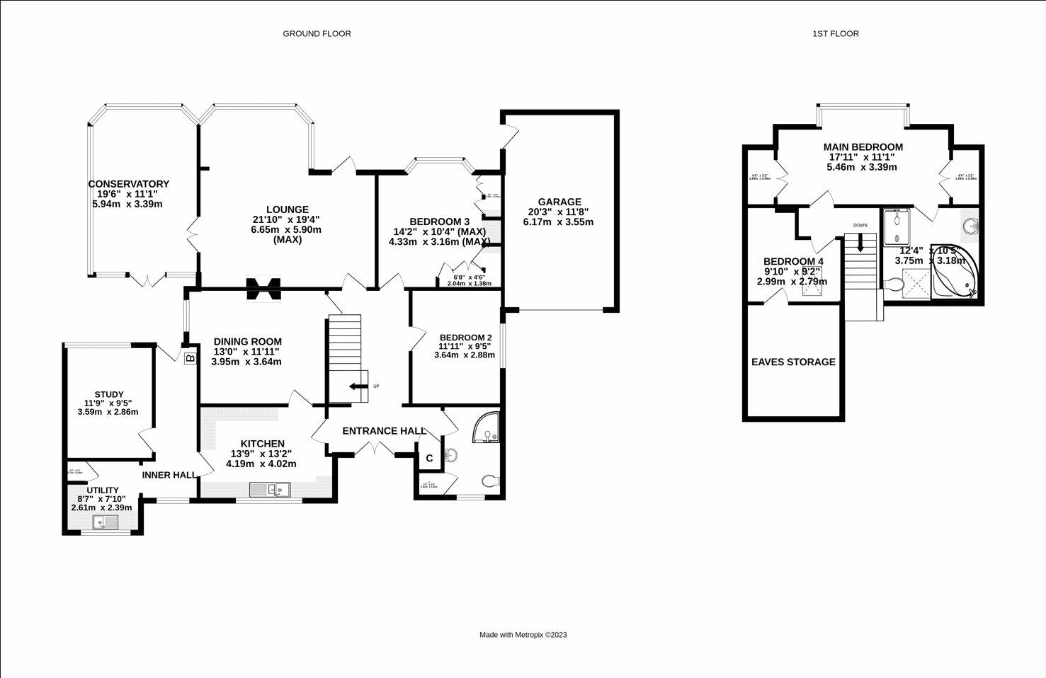
Four bedrooms with four reception rooms including study and conservatory
Large private rear garden with patio, pergola and mature landscaping
Wide driveway parking for many cars plus large garage
Panoramic countryside views from conservatory and bay windows
Built 1950s–66; cavity walls assumed uninsulated — scope for energy improvements
Council tax rated expensive; area shows signs of deprivation
No flood risk; mains gas boiler and radiators in place
Broadband and mobile signal average for area
This spacious four-bedroom detached house on Sladnor Park Road offers flexible family accommodation across multiple levels. With four reception rooms including a conservatory and a dedicated study, the layout suits families, home-working and multigenerational living. A large garage and a wide brick-paviour driveway provide generous parking for several cars.
The rear garden is maturely landscaped and private, with patio and pergola areas ideal for entertaining and children’s play. The conservatory and large bay windows flood principal rooms with light and provide panoramic views toward the surrounding countryside, enhancing the feeling of space and calm.
Constructed in the 1950s–60s, the house retains period proportions but will benefit from modernisation: cavity walls are assumed to lack insulation and some services or finishes may require updating. Council tax is noted as expensive and the wider area shows signs of deprivation, though there is no flood risk and local schools include highly rated options nearby.
Practical points are straightforward: mains gas boiler and radiators provide central heating; broadband and mobile signal are average. The property will appeal to families seeking a large plot and adaptable interior with scope to improve energy performance and add value.
4 bedroom detached house for sale in Swallowfield Rise, The Willows, Torquay, Devon, TQ2 — £485,000 • 4 bed • 2 bath • 1008 ft²
4 bedroom detached house for sale in Grosvenor Avenue, Torquay, TQ2 — £500,000 • 4 bed • 2 bath • 1711 ft²
4 bedroom detached house for sale in Sandpiper Way, The Willows, Torquay, Devon, TQ2 — £450,000 • 4 bed • 3 bath • 962 ft²
4 bedroom detached house for sale in Southfield Avenue, Preston, Paignton, Devon, TQ3 — £455,000 • 4 bed • 3 bath • 1600 ft²
4 bedroom semi-detached house for sale in Teignmouth Road, Torquay, TQ1 4EX, TQ1 — £475,000 • 4 bed • 3 bath • 1225 ft²
4 bedroom detached house for sale in Grampian Close, Paignton, TQ4 — £375,000 • 4 bed • 2 bath • 1124 ft²


































































































