**Standout Features:**
- Four bedrooms, including two en suite
- Spacious kitchen with central island and integrated appliances
- Modern living room with fireplace and built-in shelving
- Detached garage and multi-vehicle driveway
- Private, inviting garden space
- Located in a sought-after cul-de-sac
**Notable Concerns:**
- Above-average crime rate in the area
- Schools in the vicinity show mixed ratings
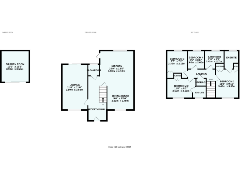
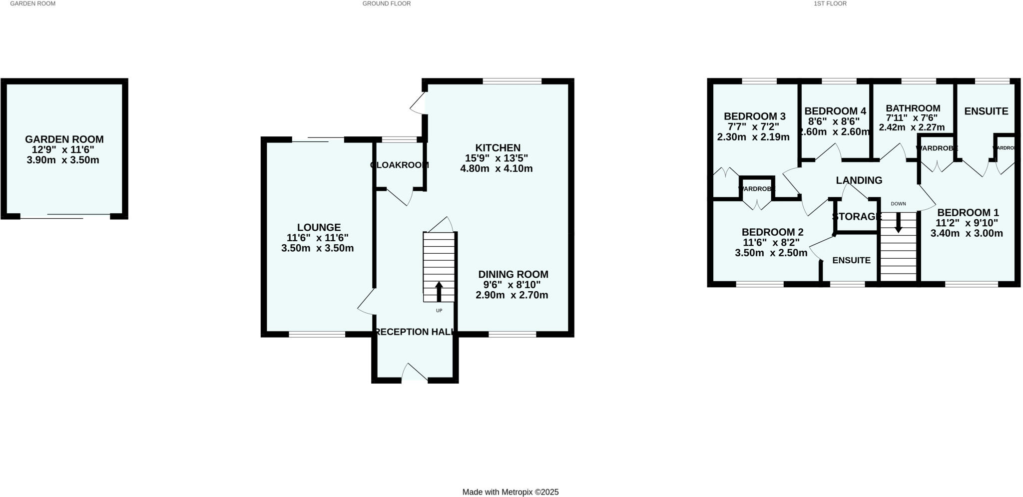
This modern four-bedroom detached home in the desirable TQ2 postcode presents an exceptional opportunity for families seeking comfort and space in a peaceful cul-de-sac. With its elegant curb appeal, the property boasts a spacious living room, a well-equipped high-end kitchen featuring a central island and integrated appliances, and two bedrooms with en suites for added convenience.
Outside, an average-sized garden creates a serene outdoor environment, perfect for relaxation or entertaining. While the home sits within an affluent community, it is important to note the above-average crime rate in the area, which may be a consideration for some buyers. The property comes with excellent mobile signal and fast broadband speeds, making it equally appealing for remote work. With reputable schools nearby, including two grammar schools that rank in the top 10%, this home could be a wonderful starting point for family life or a lucrative investment in a vibrant neighborhood. Don’t miss this chance to make it yours!
4 bedroom detached house for sale in Swallowfield Rise, The Willows, Torquay, Devon, TQ2 — £485,000 • 4 bed • 2 bath • 1008 ft²
4 bedroom detached house for sale in Dosson Grove, TORQUAY, Devon, TQ1 — £450,000 • 4 bed • 2 bath • 1621 ft²
4 bedroom detached house for sale in Waddeton Drive, Paignton, Devon, TQ4 — £470,000 • 4 bed • 4 bath • 1677 ft²
4 bedroom detached house for sale in Hayley Park, Kingskerswell, Newton Abbot, Devon, TQ12 — £500,000 • 4 bed • 3 bath • 1397 ft²
4 bedroom detached house for sale in Centenary Way, The Willows, Torquay, Devon, TQ2 — £375,000 • 4 bed • 3 bath • 948 ft²
4 bedroom detached house for sale in Barn Owl Close, Torquay, TQ2 — £389,950 • 4 bed • 3 bath • 1438 ft²


























































































