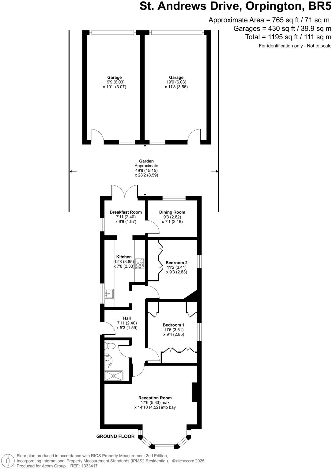
Bright single-storey home with large garden and convenient commute.
Three bedrooms with two doubles and fitted wardrobes available
Bright reception with bay window and character fireplace
Separate kitchen and dining room with garden access
Generous rear garden roughly 50 feet long
Double garage plus driveway parking for multiple vehicles
Requires modernisation throughout; dated fixtures and décor
Cavity walls as built with no added insulation (energy consideration)
Double glazing installed pre-2002; may need upgrading
Set on a generous plot close to schools and transport, this single-storey home offers comfortable living and genuine scope to modernise. The reception room with a bay window and character fireplace gives immediate charm, while a separate kitchen and dining room open directly onto a well-kept, c.50ft rear garden — excellent for children and weekend entertaining. A double garage and driveway provide secure parking and storage.
Internally the layout is practical: three bedrooms and a fully tiled family bathroom across approximately 1,000 sq ft of living space. The property benefits from mains gas central heating and double glazing (installed before 2002), delivering immediate warmth and light, though décor and fittings are dated and will suit buyers seeking to update finishes to their taste.
Important practical points: the outer cavity walls are as-built with no added insulation (likely affecting energy efficiency), and some modernisation is recommended to achieve contemporary comfort and value. The area is affluent with fast broadband and excellent mobile signal, and the house is a 15-minute walk (0.8 miles) from Orpington station for commuters. Note the local crime rate is above average; buyers should factor this into their plans.
3 bedroom bungalow for sale in Cheltenham Road, South Orpington, Kent, BR6 — £675,000 • 3 bed • 1 bath • 1146 ft²
3 bedroom bungalow for sale in Mungo Park Way, Orpington, BR5 — £450,000 • 3 bed • 1 bath • 1024 ft²
2 bedroom bungalow for sale in Glentrammon Gardens, Orpington, BR6 — £590,000 • 2 bed • 1 bath • 1053 ft²
2 bedroom detached bungalow for sale in Goddington Lane, Orpington, BR6 — £600,000 • 2 bed • 1 bath • 840 ft²
2 bedroom bungalow for sale in Marcellina Way, Orpington, BR6 — £450,000 • 2 bed • 1 bath • 610 ft²
3 bedroom bungalow for sale in Gillmans Road, Orpington, BR5 — £525,000 • 3 bed • 1 bath • 857 ft²






























































