Huge freehold lakeside plot with live holiday planning consent and extensive services.
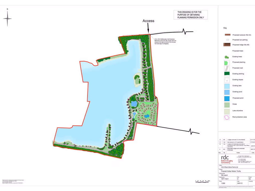
Full planning permission for 53 mobile homes, 48 lodges and reception lodge
This is a substantial lakeside development plot with full planning permission for a mixed holiday scheme: 53 mobile holiday homes, 48 lodges and a reception lodge with year-round consent. The site totals circa 53 acres of land set within an approximately 130-acre lake environment, offering extensive private shoreline, mature tree screening and panoramic water views. On-site infrastructure includes a 63 mm mains water supply and a 500 kVA three-phase electrical supply; perimeter tracks have been surfaced with stone and gravel.
The location provides excellent road links to the A1 and A46 while remaining unusually secluded, making it attractive for a leisure operator or investor seeking a turnkey consented project. The planning consent was granted by North Kesteven District Council (ref: 13/0956/FUL) on 16 May 2014 and the Local Planning Authority has confirmed the consent has been implemented. There is capacity for non‑motorised water sports under the consent, supporting a wider holiday offer.
Notable constraints are material and must be considered: parts of the wider landholding (approaching 90 acres) are subject to a 50% clawback provision expiring January 2041; details are governed by a Section 106 agreement. Broadband speeds are recorded as slow and mobile signal is average, which may affect guest expectations; there are no flood risk concerns. The site is sold freehold.
This opportunity suits experienced leisure developers, operators or investors able to mobilise the remaining build‑out and manage S106/commercial arrangements. Viewing on site is recommended to appreciate the scale, setting and existing infrastructure.
Plot for sale in Development Opportunity, Tranmar, Tattershall Bridge Road, Billinghay, Lincoln, Lincolnshire, LN4 — £275,000 • 1 bed • 1 bath • 1819 ft²
Leisure facility for sale in Westwood Lakes, Five House Lane, Wyberton, Boston, Lincolnshire, PE21 — £6,950,000 • 1 bed • 1 bath • 2603 ft²
Leisure facility for sale in Brackenbury Fishing Lake, Whitecross Lane, Burton Pedwardine, Sleaford, Lincolnshire, NG34 0DA, NG34 — £80,000 • 1 bed • 1 bath
Leisure facility for sale in Railway Lake, Lincoln, East Midlands, LN6 — £200,000 • 1 bed • 1 bath
Land for sale in Development Land, Fairacres Farm, Moor Lane, Thorpe-On-The-Hill, Lincoln, Lincolnshire, LN6 9BW, LN6 — £1,000,000 • 1 bed • 1 bath
2 bedroom lodge for sale in Ferry Lodge, Blankney Dales, Woodhall Spa, LN10 — £225,000 • 2 bed • 1 bath


























































