Large plot with barns ideal for conversion, subject to planning and essential upgrades.
- Large, very large plot with multiple outbuildings and Dutch barn
- Significant potential to extend or convert, subject to planning permission
- Requires full modernisation throughout; dated fixtures and finishes
- Some outbuildings appear to contain asbestos; licensed removal required
- Medium flood risk on site; enquiries advised
- LPG boiler and radiators; off-network fuel supply
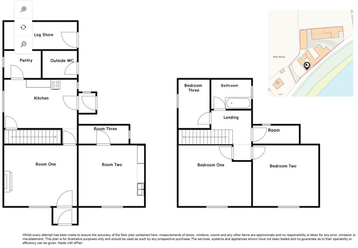
- Single bathroom only; substantial interior reconfiguration likely
- Excellent mobile signal and fast broadband in rural setting
Set on a substantial plot on the outskirts of Newland, this three-bedroom freehold house sits among multiple outbuildings and a Dutch barn, offering clear scope for conversion or extension subject to planning. The house itself dates from the mid-20th century and requires a substantial programme of modernisation throughout, making it most suitable for developers, self-builders or experienced renovators.
The property benefits from double glazing, LPG-fired boiler and low local crime, with excellent mobile signal and fast broadband for a rural setting. The plot size and collection of farm buildings are the main value drivers: they could provide meaningful additional accommodation or separate units if Selby District Council grants planning permission.
Buyers should note practical drawbacks: the house needs full refurbishment, some outbuildings appear to contain asbestos that will require licensed removal, and there is a medium flood risk. The single bathroom and dated interiors mean upfront costs will be significant, and any development plans must be checked with the local planning authority before purchase.
Offered via secure online auction, this property is geared toward buyers who can manage renovation risk and planning enquiries. For the right purchaser it presents an opportunity to create a bespoke country home or produce added value through careful redevelopment.
3 bedroom detached house for sale in Newland, Selby, YO8 — £450,000 • 3 bed • 1 bath • 958 ft²
5 bedroom farm house for sale in Grange Road, Hemingbrough, North Yorkshire YO8 — £1,250,000 • 5 bed • 2 bath • 2336 ft²
5 bedroom detached house for sale in Main Street, West Haddlesey, Selby, North Yorkshire, YO8 — £995,000 • 5 bed • 2 bath • 3085 ft²
Healthcare facility for sale in Langdale House, River Lane, Market Weighton, York YO43 4FN, YO43 — £150,000 • 6 bed • 1 bath
3 bedroom semi-detached house for sale in Northfield, Barlby, Selby, North Yorkshire, YO8 — £190,000 • 3 bed • 1 bath • 1058 ft²
5 bedroom detached house for sale in Oak View, Newland, Selby, YO8 8PS, YO8 — £525,000 • 5 bed • 3 bath • 2611 ft²






































































































































