Light-filled three-bedroom with private garden, driveway and permitted loft conversion close to station.
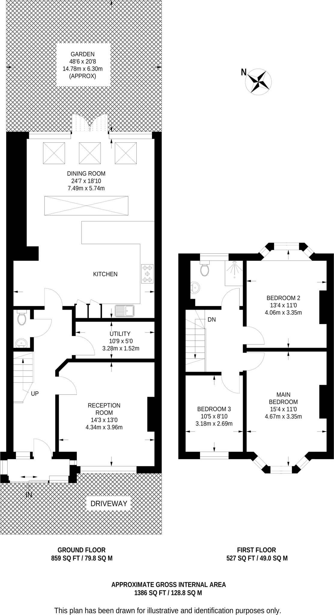
Three bedrooms and two bathrooms, 1,386 sqft total
Bright, adaptable three-bedroom terrace on Westway offering 1,386 sqft of living space and strong natural light throughout. A recent rear extension opens via bi-fold doors into a large open-plan kitchen/living area with skylights and solid wooden floors, creating an easy flow for family life and entertaining. The rear garden is private with no houses directly overlooking, and off-street parking is available on the paved driveway.
Practical benefits include double glazing, mains gas central heating, fast broadband and excellent mobile signal. There is a permitted development certificate for a loft conversion (Merton ref 21/P4470), presenting clear potential to add more space and value. Raynes Park station is about a 13-minute walk, with swift rail connections and easy A3 access for drivers.
Notable considerations: the property was built circa 1900–1929 with solid brick walls likely lacking modern cavity insulation, so buyers should budget for potential thermal upgrades. The plot is modest in size and the flood risk is assessed as medium; suitable insurance and flood-prevention advice should be sought. Overall the house offers immediate modern living with realistic scope for further enlargement and improvement.
4 bedroom house for sale in Westway, West Wimbledon, SW20 — £750,000 • 4 bed • 1 bath • 1081 ft²
5 bedroom end of terrace house for sale in Westway, London, SW20 — £1,000,000 • 5 bed • 2 bath • 1567 ft²
5 bedroom terraced house for sale in Westway, London, SW20 — £800,000 • 5 bed • 2 bath • 1128 ft²
4 bedroom terraced house for sale in Kingston Road, Raynes Park, SW20 — £1,000,000 • 4 bed • 3 bath • 1473 ft²
4 bedroom terraced house for sale in Westway, London, SW20 — £1,070,000 • 4 bed • 2 bath • 1617 ft²
3 bedroom terraced house for sale in Firstway, Raynes Park, London, SW20 — £725,000 • 3 bed • 1 bath • 1184 ft²














































































































































































