Renovated, parking for two and south-facing garden near Raynes Park.
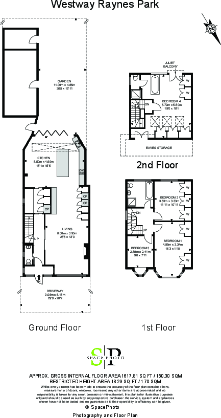
Chain free four-bedroom terraced house with loft conversion
This chain-free, newly renovated four-bedroom terraced home on Westway blends contemporary living with practical family layout. The top-floor loft conversion provides a private bedroom with shower and bath, while three further bedrooms occupy the first floor. An open-plan kitchen/dining/living area with bifold doors opens to a south-facing garden, bringing strong natural light and easy indoor-outdoor flow.
Practical features include a separate utility room, downstairs WC, and underfloor heating downstairs and in the loft room. Off-street parking for two cars and a large outdoor storage building/garage add rare convenience for the area. The property benefits from double glazing, gas central heating, and modern finishes throughout following a recent renovation.
Buyers should note the house dates from the 1930s–1940s with solid brick external walls that are assumed to lack cavity insulation, and double glazing install dates are unknown. There is a medium flooding risk for the location — factor this into insurance and long-term maintenance costs. Overall the home suits a family seeking move-in condition with parking and outdoor space close to good schools and Raynes Park rail links.
4 bedroom house for sale in Westway, West Wimbledon, SW20 — £750,000 • 4 bed • 1 bath • 1081 ft²
4 bedroom end of terrace house for sale in Samara Place, Raynes Park, SW20 — £1,400,000 • 4 bed • 3 bath • 1921 ft²
4 bedroom semi-detached house for sale in Grand Drive, Raynes Park, London, SW20 — £825,000 • 4 bed • 3 bath • 1604 ft²
4 bedroom terraced house for sale in Kingston Road, Raynes Park, SW20 — £1,050,000 • 4 bed • 3 bath • 1473 ft²
4 bedroom terraced house for sale in Lower Downs Road, Raynes Park, Wimbledon, SW20 — £1,075,000 • 4 bed • 2 bath • 1517 ft²
4 bedroom terraced house for sale in Durham Road, West Wimbledon, SW20 — £1,225,000 • 4 bed • 2 bath • 1497 ft²










































