Light-filled first-home or rental near parks and stations in SE26.
- Chain-free with long lease, ready to purchase
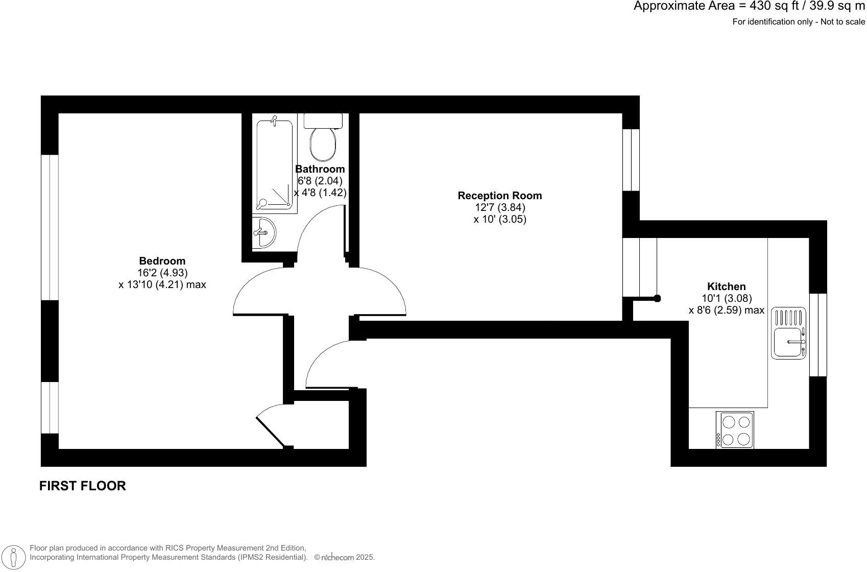
- 40 sqm total floor area; compact one-bedroom layout
- 16' master bedroom offers generous sleeping space
- 12' lounge; good natural light from sash-style windows
- Modern kitchen and gas central heating installed
- Solid brick walls (likely no cavity insulation) may affect warmth
- No garden or private outdoor space; on-street parking only
- Short walk to Penge East, Sydenham stations and local parks
A well-presented one-bedroom period conversion on a quiet tree-lined street, offered chain-free with a long lease. The flat benefits from a large 16' master bedroom, a 12' lounge and a modern kitchen — practical spaces arranged within a compact 40 sqm layout that suits first-time buyers or buy-to-let investors.
Set in a late-Victorian mid-terrace, the apartment retains period character externally and sash-style windows that admit good natural light. Transport links are strong: Penge East and Sydenham stations are within easy reach, and Alexandra Park and Crystal Palace Park are walkable for weekend recreation.
This is a straightforward, city-edge purchase with clear positives — long lease, gas central heating, double glazing and no onward chain — balanced by small overall floor area and the building’s traditional solid-brick construction. Solid walls (assumed uninsulated) may limit thermal efficiency and could be a consideration for future improvement works.
Ideal for a first-time buyer wanting a manageable, characterful London base, or an investor seeking a lettable flat in a popular SE26 location. There is limited external space and living areas are compact, so viewings are recommended to confirm room proportions and storage for your needs.
1 bedroom flat for sale in Tarragon Grove, Sydenham, London, SE26 — £250,000 • 1 bed • 1 bath • 452 ft²
1 bedroom flat for sale in Croydon Road, London, SE20 — £200,000 • 1 bed • 1 bath • 352 ft²
1 bedroom flat for sale in Tarragon Grove, London, SE26 — £250,000 • 1 bed • 1 bath • 516 ft²
1 bedroom flat for sale in Croydon Road, London, SE20 — £200,000 • 1 bed • 1 bath • 352 ft²
1 bedroom flat for sale in Mosslea Road, Penge, London, SE20 — £265,000 • 1 bed • 1 bath • 474 ft²
1 bedroom apartment for sale in Versailles Road, Anerley, London, SE20 — £300,000 • 1 bed • 1 bath • 463 ft²














































