Planning permission granted to create two detached dwellings (ref 24/00506/FUL)
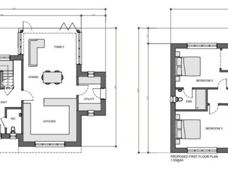
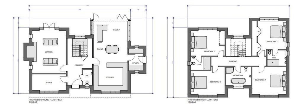
A rare semi-rural opportunity on a substantial plot in Otford Hills: an existing five-bedroom Tudor Revival house with approved planning (ref 24/00506/FUL) to create two detached homes, including a new-build four-bedroom house of approximately 2,066 sq ft. Both properties would enjoy extensive gardens, far-reaching countryside views and private parking with a detached garage and studio above for Plot 1.
This site suits buyers seeking development upside or families wanting spacious accommodation set in a peaceful village setting. The existing house offers large, high-ceiling rooms and period details, while the permitted new build provides modern, open-plan living and three bath/shower rooms. The sale is chain free on freehold tenure, simplifying completion for purchasers.
Practical considerations are straightforward and should be factored into purchase plans: broadband speeds in the area are slow, and the wider local classification indicates an older demographic, which may affect local services and future demand patterns. Crime levels are average for the area. The project will require coordination with contractors to implement the approved plans and complete internal works to create two separate dwellings.
The site’s strengths—sizeable gardens, development consent, countryside views and no onward chain—make it attractive to developers, investor-buyers or extended families wanting two linked residences. Buyers should commission their own surveys and obtain contractor estimates to confirm costs and timelines before exchange.
5 bedroom detached house for sale in Shoreham Road, Otford, Sevenoaks, Kent, TN14 — £850,000 • 5 bed • 3 bath • 3993 ft²
Plot for sale in Plot 2, Lytlewood & Russettings, Riding Lane, Hildenborough, TN11 — £675,000 • 1 bed • 1 bath • 542 ft²
Plot for sale in Farningham Hill Road, DA4 0JR, DA4 — £350,000 • 4 bed • 1 bath • 1658 ft²
4 bedroom detached house for sale in Colets Orchard, Otford, Sevenoaks, Kent, TN14 — £995,000 • 4 bed • 2 bath • 1527 ft²
4 bedroom semi-detached house for sale in The Butts, Otford, Sevenoaks, TN14 — £775,000 • 4 bed • 1 bath • 1305 ft²
4 bedroom detached house for sale in Windmill Hill, Brenchley, Tonbridge, Kent, TN12 — £700,000 • 4 bed • 1 bath • 3450 ft²






















