Compact one-bedroom near Rushmore School and Clapton station.
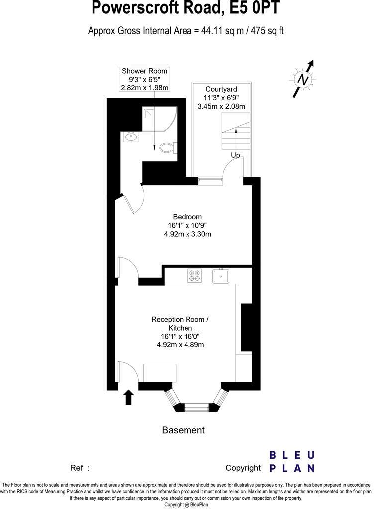
475 sq ft lower-ground flat with private paved courtyard
A compact, well-presented lower-ground apartment in a handsome Victorian terrace, offered chain free and ideal for a first-time buyer or buy-to-let investor. The flat makes efficient use of 475 sq ft with an open-plan reception and modern kitchen, a large double bedroom with en suite shower room and direct access to a private paved courtyard.
Practical positives include a long lease (123 years remaining), mains gas central heating, double glazing and excellent broadband and mobile signals. The location is a strong draw: Rushmore Primary catchment, a short walk to Millfields recreation grounds, Clapton Overground and local shops, cafes and restaurants.
Buyers should note this is a lower-ground (basement) flat, which can mean reduced natural light compared with upper floors. The building is an older, solid-brick Victorian construction where insulation levels are likely limited; upgrading insulation or doors/windows may be needed. The property is leasehold and sits within an area with average crime levels and higher local deprivation indices compared with the borough average.
Overall this is a compact, well-located home that suits someone seeking an affordable London entry-point close to green space and good schools, or an investor looking for a centrally connected rental opportunity. Budget for modest improvements to maximise comfort and long-term efficiency.
2 bedroom flat for sale in Chatsworth Road, Lower Clapton, London, E5 — £675,000 • 2 bed • 1 bath • 980 ft²
2 bedroom flat for sale in Southwold Road, E5 — £465,000 • 2 bed • 2 bath • 700 ft²
1 bedroom apartment for sale in Mount Pleasant Lane, London, E5 — £460,000 • 1 bed • 1 bath • 678 ft²
2 bedroom apartment for sale in Powerscroft Road, Lower Clapton, E5 — £600,000 • 2 bed • 1 bath • 734 ft²
1 bedroom apartment for sale in Thistlewaite Road, Hackney, E5 — £360,000 • 1 bed • 1 bath • 530 ft²
1 bedroom flat for sale in Powell Road, Clapton, Hackney, E5 — £425,000 • 1 bed • 1 bath • 476 ft²














































