Quiet three-bed cottage with large garden and field views, ideal first home or rural retreat.
No onward chain, ready to move into
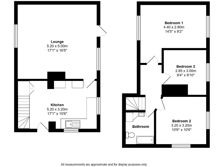
A characterful three-bedroom semi-detached cottage set in a quiet hamlet, offered with no onward chain. Recently redecorated throughout, the home combines period charm—exposed stone walls and dormer windows—with a contemporary kitchen and bright rooms that take full advantage of the rear field views.
The property sits on a large plot with extensive driveway parking and a covered car port, plus a patio and brick outbuilding ideal for storage or a small workshop. The lounge features a wood-burning stove that adds cosy appeal in winter; the kitchen is practical with solid wood worktops and space for appliances.
Practical considerations: heating is by electric storage heaters, the walls are likely uninsulated sandstone/limestone, and the property uses a private drainage system. The EPC is rated E and there is one family bathroom. These factors should be weighed against the low running-room style, rural setting and recent cosmetic updates.
This cottage will suit first-time buyers or buyers seeking a peaceful rural base with scope to improve energy performance and personalise finishes. A survey is recommended to assess insulation, services and the private drainage before purchase.
2 bedroom cottage for sale in 6 Wellyard Cottages, Common Lane, Gayton Thorpe, King's Lynn, Norfolk, PE32 — £260,000 • 2 bed • 1 bath • 666 ft²
2 bedroom cottage for sale in Church Lane, East Winch, King's Lynn, Norfolk, PE32 — £240,000 • 2 bed • 1 bath • 913 ft²
3 bedroom end of terrace house for sale in Pockthorpe, Norfolk, PE31 — £350,000 • 3 bed • 2 bath • 1236 ft²
3 bedroom semi-detached house for sale in Winch Road, Gayton, King's Lynn, Norfolk, PE32 — £340,000 • 3 bed • 2 bath • 1127 ft²
3 bedroom semi-detached house for sale in Shouldham Thorpe, PE33 — £300,000 • 3 bed • 1 bath • 1298 ft²
4 bedroom cottage for sale in Castle Road, Wormegay, King's Lynn, Norfolk, PE33 — £315,000 • 4 bed • 2 bath • 984 ft²










































































