Charming village home with flexible space, parking and private garden.
Victorian stone cottage with original character and exposed beams
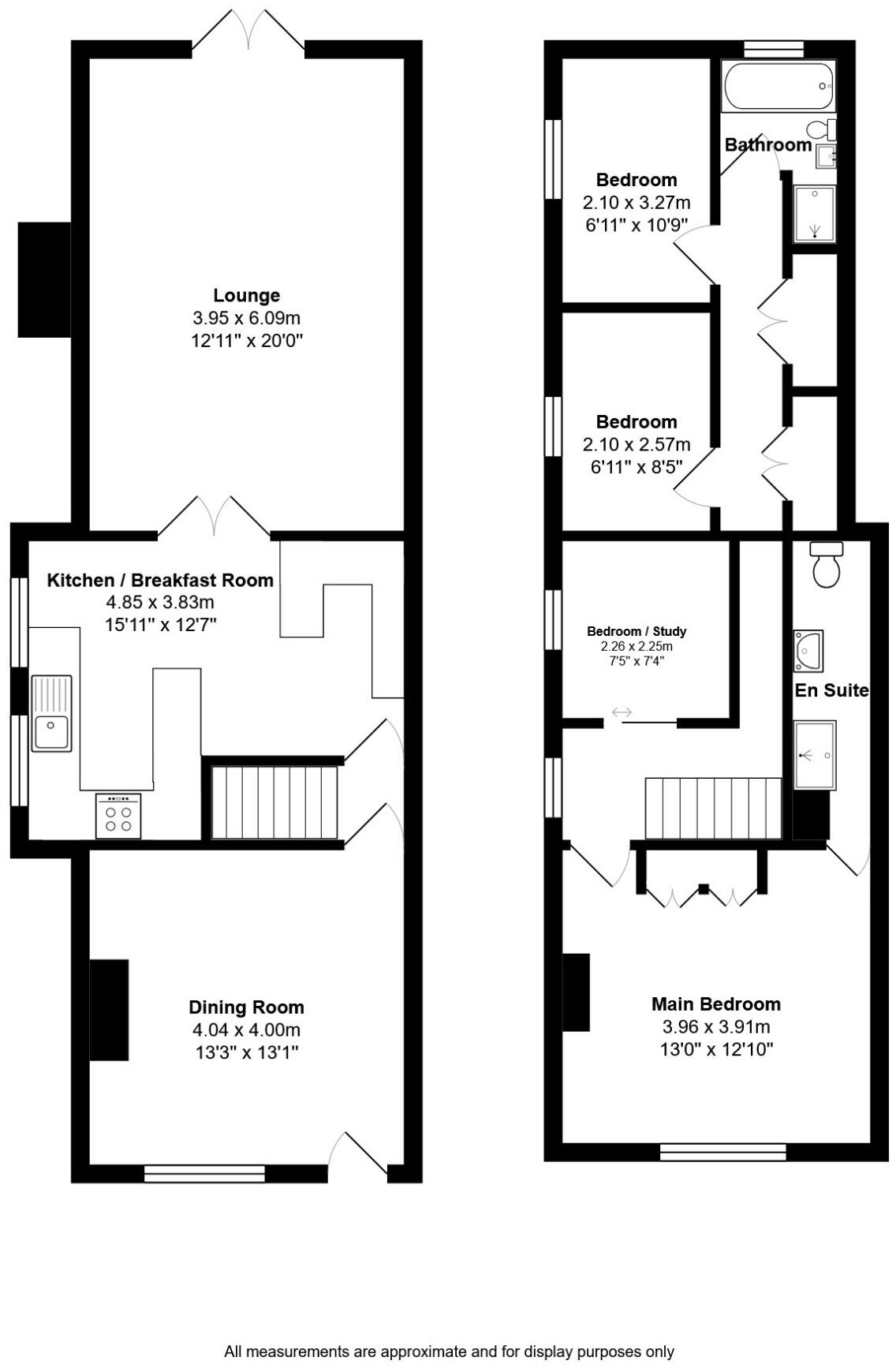
Master bedroom with en suite shower room
Flexible layout: three bedrooms plus a study/optional fourth
Open-plan kitchen/breakfast and dining room for family living
Lounge with wood-burning stove and French doors to garden
Driveway parking for multiple vehicles; shared access noted
Landscaped, fully enclosed rear garden with shed and side access
EPC E; stone walls likely uninsulated and oil heating (upgrade potential)
This well-maintained Victorian cottage blends original character with roomy, flexible living across two floors — ideal for families seeking village life. Ground floor features include a generous dining room, an open-plan kitchen/breakfast area and a lounge with a wood-burning stove and French doors to the garden. The property is ready to move into and configured as three bedrooms plus a study/optional fourth bedroom.
The first-floor master bedroom has an en suite shower; a further double and single bedroom and a modern family bathroom (bath and separate shower) complete the sleeping accommodation. The landscaped, enclosed rear garden is established and low-maintenance, with side access and a garden shed. Driveway parking accommodates multiple vehicles, with additional access from the road if required.
Practical details: the cottage is freehold, double glazed (post-2002), connected to mains services and heated by an oil-fired boiler with radiators. Council tax is low and the setting is a peaceful rural village with good local primary schools and scenic walking and equestrian routes.
Notable drawbacks are factual and important: the property has stone walls assumed to be uninsulated and an EPC rating of E, so energy efficiency upgrades could be needed. Heating relies on oil (not a community supply), and part of the driveway is shared to provide access for the neighbouring property. Prospective buyers should arrange their own surveys and services checks before purchase.
4 bedroom detached house for sale in Main Road, Crimplesham, King's Lynn, PE33 — £595,000 • 4 bed • 2 bath • 2294 ft²
4 bedroom cottage for sale in Tottenhill Row, Tottenhill, King's Lynn, PE33 — £600,000 • 4 bed • 3 bath • 1895 ft²
2 bedroom cottage for sale in Boughton, PE33 — £295,000 • 2 bed • 1 bath • 812 ft²
2 bedroom character property for sale in Chapel Road, Boughton, PE33 — £238,500 • 2 bed • 1 bath • 697 ft²
4 bedroom semi-detached house for sale in Hill Road, Fair Green, Middleton, King's Lynn, Norfolk, PE32 — £550,000 • 4 bed • 2 bath • 1272 ft²
2 bedroom semi-detached house for sale in Westgate Street, Shouldham, King's Lynn, PE33 — £260,000 • 2 bed • 1 bath • 732 ft²






























































































































