Split-level character flat with private garden and long lease.
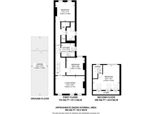
Three double bedrooms across a split-level layout
A bright, well-presented Warner estate flat arranged over split levels, this three-bedroom home combines Edwardian character with modern fittings. The reception room’s high ceilings and bay window, plus a contemporary separate kitchen, create comfortable living and clear entertaining flow. Direct access to a private rear garden gives outside space that is rare for flats in this area.
Practical points that add value are a long lease (146 years) and no service charge or ground rent, which reduces ongoing costs and makes mortgage applications straightforward. The property is a short walk from St James Street Station and local cafés, shops and Walthamstow Market — convenient for commuters and family life.
Buyers should note a single family bathroom for three bedrooms and that the building’s solid-brick walls likely have no cavity insulation. Double glazing is in place but installed before 2002. The area records above-average crime and local deprivation statistics; viewings will help judge whether the neighbourhood suits your needs.
Overall this is a spacious, ready-to-move-in split-level flat with period charm, private garden and low holding costs — a strong option for young families or first-time buyers seeking good transport links and schools nearby.
2 bedroom flat for sale in Harris Street, Walthamstow, London, E17 — £475,000 • 2 bed • 1 bath • 769 ft²
3 bedroom maisonette for sale in Warner Road, Walthamstow, E17 — £525,000 • 3 bed • 1 bath • 721 ft²
2 bedroom apartment for sale in Theydon Street, Walthamstow, E17 — £499,995 • 2 bed • 1 bath • 789 ft²
2 bedroom flat for sale in Chingford Road, London, E17 — £450,000 • 2 bed • 1 bath • 769 ft²
3 bedroom flat for sale in Fleeming Road, Walthamstow, London, E17 — £600,000 • 3 bed • 1 bath • 1061 ft²
2 bedroom flat for sale in Chingford Road, Walthamstow, London, E17 — £425,000 • 2 bed • 1 bath • 791 ft²






















































































































































