Bright modern one-bed near Elizabeth Line and riverside amenities.
Private wraparound roof terrace with riverside views
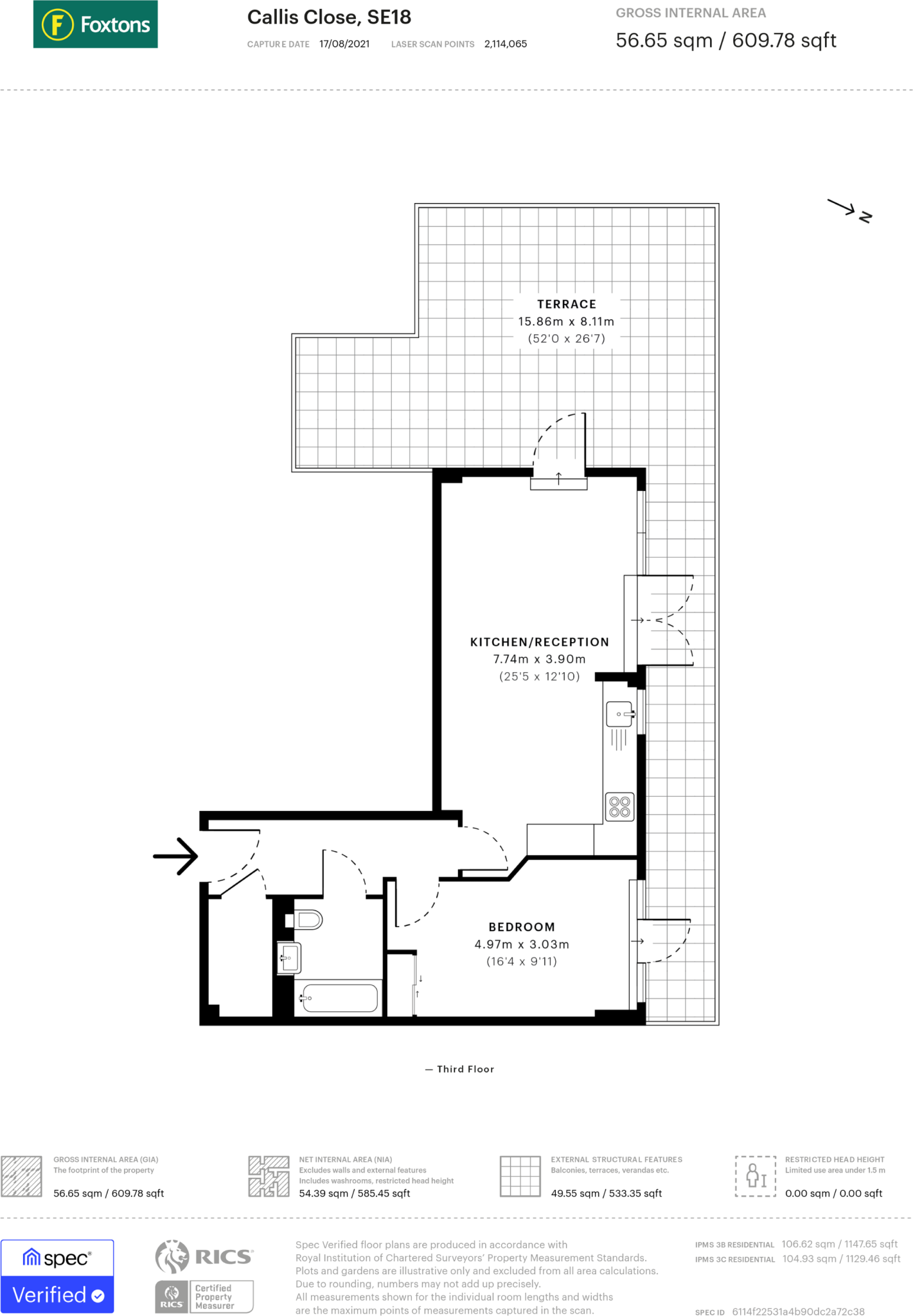
Set on the third floor of a modern gated development, this one-bedroom apartment offers a bright dual-aspect reception and a private wraparound roof terrace with river views — ideal for daily living and entertaining. The open-plan kitchen includes integrated appliances and there’s a stylish double bedroom with built-in wardrobe and a luxurious bathroom. At about 609 sq ft, the layout feels roomy for a one-bedroom apartment.
Residents benefit from 24-hour concierge, a communal gym and an additional shared roof terrace, plus very convenient transport links — DLR, rail and the Elizabeth Line are all close by for fast commutes across London. The property sits near the Royal Arsenal and riverside amenities including shops, restaurants and ferry access.
Be clear about a few practical points: the home is leasehold (long unexpired term of 992 years) and is served by a community heating scheme, so heating is managed centrally. The local area is classified as deprived with a very high recorded crime level, so buyers should consider local safety and transport during viewings.
Overall, this apartment suits a first-time buyer seeking modern, low-maintenance riverside living with excellent transport links — or an investor wanting a well-located one-bedroom in a popular regeneration area. Viewing will show how the large terrace and bright living space add practical value to the property.
2 bedroom flat for sale in Norton House, Woolwich Riverside, London, SE18 — £625,000 • 2 bed • 1 bath • 678 ft²
1 bedroom flat for sale in Hampton Apartments, Woolwich Riverside, London, SE18 — £425,000 • 1 bed • 1 bath • 564 ft²
1 bedroom flat for sale in Thalia House, Woolwich Riverside, London, SE18 — £390,000 • 1 bed • 1 bath • 541 ft²
1 bedroom flat for sale in Judde House, Woolwich Riverside, London, SE18 — £505,000 • 1 bed • 1 bath • 550 ft²
1 bedroom flat for sale in Duncombe House, Woolwich Riverside, London, SE18 — £395,000 • 1 bed • 1 bath • 558 ft²
1 bedroom apartment for sale in Duke of Wellington Avenue, Royal Arsenal, Woolwich, London, SE18 — £315,000 • 1 bed • 1 bath • 470 ft²


















































































































































































































































































































































































































































































