Modern riverside living with gym, pool and fast Elizabeth line access.
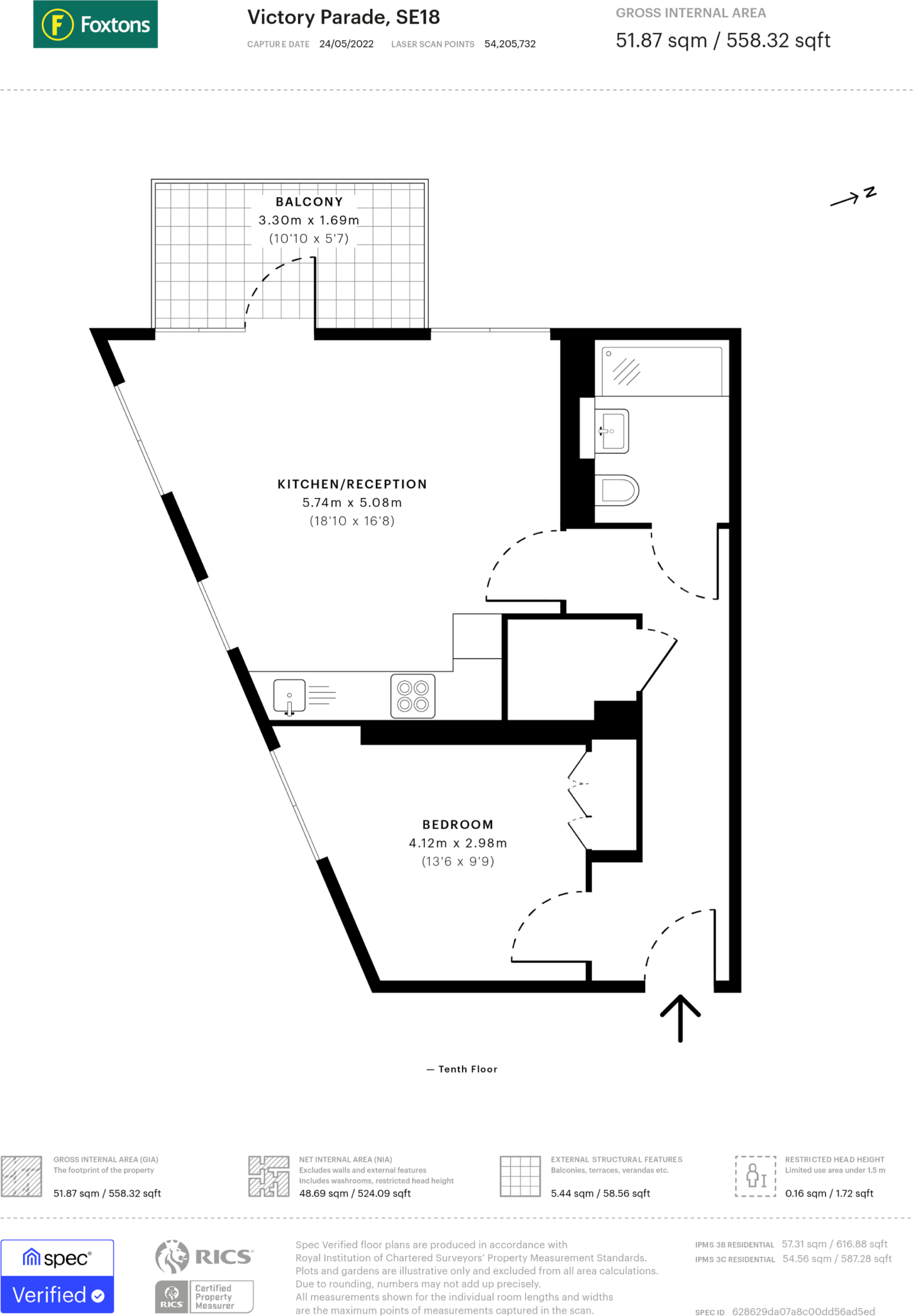
10th-floor apartment with private balcony and far-reaching views
Bright 10th-floor apartment in Royal Arsenal Riverside, ideal for a first-time buyer seeking modern, secure riverside living. Floor-to-ceiling windows and a private balcony deliver wide views and generous daylight into the open-plan reception and kitchen with integrated appliances.
The double bedroom includes built-in wardrobes and the shower room is stylish and contemporary. Residents benefit from strong on-site amenities: concierge, gym, swimming pool, sauna and cinema room, plus fast transport links including the on-site Elizabeth line and Thames Clipper services.
Practical points to note: the property is leasehold (very long lease remaining) with a listed ground rent and is served by a community heating scheme — communal charges will apply. There is underground motorcycle parking rights but no dedicated car space. The wider area has above-average crime figures and pockets of deprivation, though local schools and shops are easily accessible.
1 bedroom flat for sale in Windsor Square, Woolwich Riverside, London, SE18 — £425,000 • 1 bed • 1 bath • 552 ft²
1 bedroom flat for sale in Thalia House, Woolwich Riverside, London, SE18 — £390,000 • 1 bed • 1 bath • 541 ft²
2 bedroom flat for sale in Duncombe House, Woolwich Riverside, London, SE18 — £465,000 • 2 bed • 1 bath • 702 ft²
1 bedroom flat for sale in Duncombe House, Woolwich Riverside, London, SE18 — £375,000 • 1 bed • 1 bath • 543 ft²
Studio flat for sale in Duncombe House, Woolwich Riverside, London, SE18 — £375,000 • 1 bed • 1 bath • 427 ft²
1 bedroom flat for sale in West Carriage House, Woolwich Riverside, London, SE18 — £360,000 • 1 bed • 1 bath • 495 ft²


























































































































































































































































































































































































































































