Large family home with garden, garage and coastal access.
Four double bedrooms with two en-suites and family bathroom
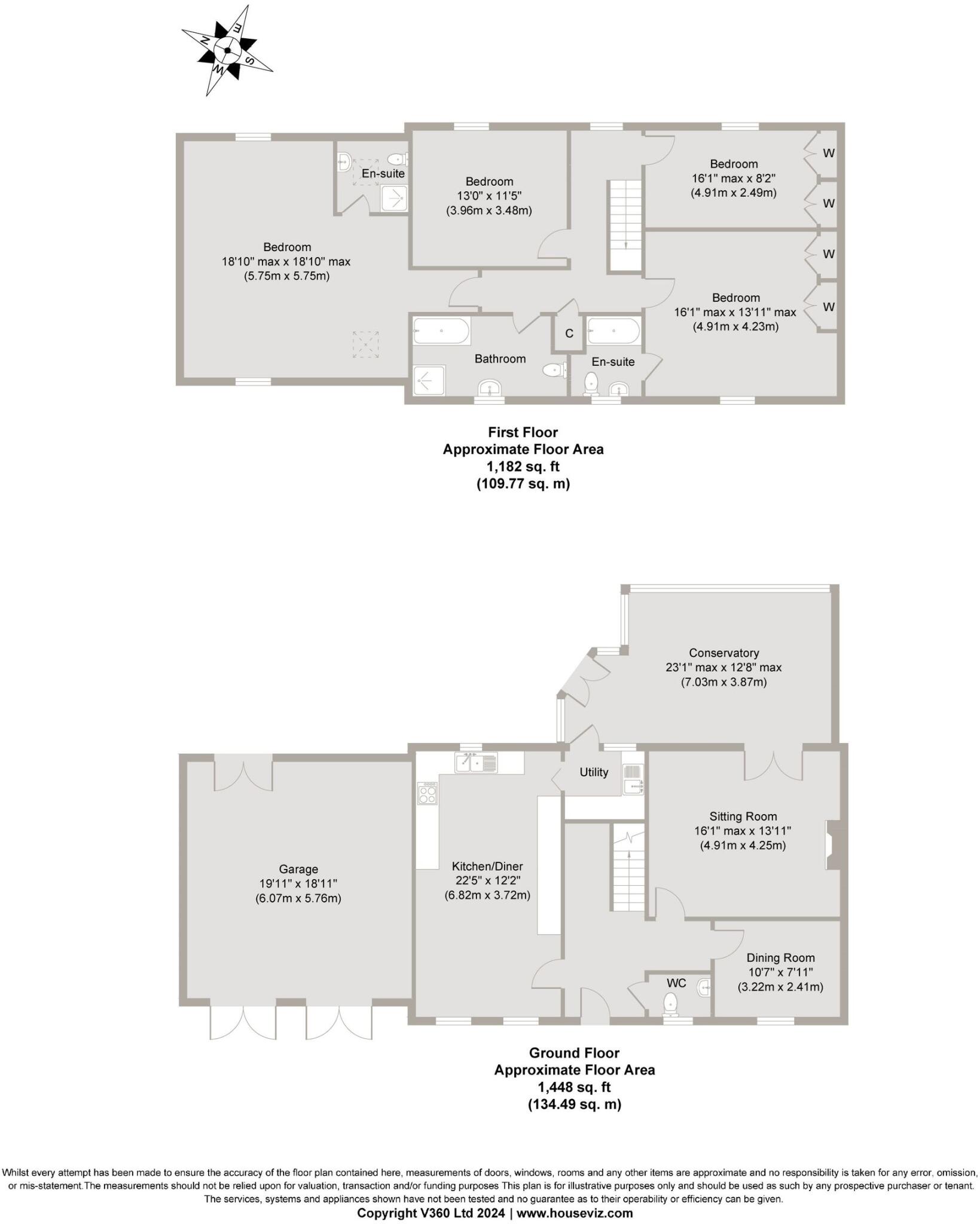
Set just inland from the North Norfolk coast, this four-double-bedroom barn conversion blends spacious family living with rural charm. Built in 2002 and thoughtfully updated, the layout provides flexible reception spaces — a full-length kitchen/dining room, separate dining/office, sitting room and conservatory — ideal for family days and entertaining.
Upstairs are four generous bedrooms, two en‑suites and a family bathroom, giving comfortable space for children, guests or a home office. The property sits on a large plot with a lawn, patio and a pagoda, plus substantial off-street parking and a double garage suitable for vehicles, storage or a workshop.
Practical details suit a village lifestyle: oil-fired boiler with radiators, double glazing, private drainage and Band F council tax. The EPC is rated D, so there is scope to improve energy efficiency if desired. There is no flood risk and local broadband and mobile signal are strong.
This home will suit families seeking peaceful countryside living within easy driving distance of the coast, schools and local amenities. While well presented, buyers should note the oil heating system and private drainage arrangements when assessing running costs and consider any further energy upgrades they might want to undertake.
 4 bedroom barn conversion for sale in Sedgeford, Norfolk, PE36 — £1,200,000 • 4 bed • 3 bath • 3241 ft²
 4 bedroom barn conversion for sale in Sedgeford, Norfolk, PE36 — £1,200,000 • 4 bed • 3 bath • 3241 ft² 5 bedroom barn conversion for sale in Substantial Barn Conversion in Sedgeford, PE36 — £1,750,000 • 5 bed • 4 bath • 5131 ft²
 5 bedroom barn conversion for sale in Substantial Barn Conversion in Sedgeford, PE36 — £1,750,000 • 5 bed • 4 bath • 5131 ft² 5 bedroom link detached house for sale in Ringstead Road, Sedgeford, Hunstanton, Norfolk, PE36 — £1,750,000 • 5 bed • 4 bath • 4677 ft²
 5 bedroom link detached house for sale in Ringstead Road, Sedgeford, Hunstanton, Norfolk, PE36 — £1,750,000 • 5 bed • 4 bath • 4677 ft² 6 bedroom detached house for sale in Chain Free Barn Conversion with Annexe in Hillington, PE31 — £1,100,000 • 6 bed • 5 bath • 5237 ft²
 6 bedroom detached house for sale in Chain Free Barn Conversion with Annexe in Hillington, PE31 — £1,100,000 • 6 bed • 5 bath • 5237 ft² 4 bedroom barn conversion for sale in The Street, Syderstone, King's Lynn, PE31 — £375,000 • 4 bed • 2 bath • 1314 ft²
 4 bedroom barn conversion for sale in The Street, Syderstone, King's Lynn, PE31 — £375,000 • 4 bed • 2 bath • 1314 ft² 3 bedroom semi-detached bungalow for sale in Harpley, PE31 — £600,000 • 3 bed • 2 bath • 2047 ft²
 3 bedroom semi-detached bungalow for sale in Harpley, PE31 — £600,000 • 3 bed • 2 bath • 2047 ft²






























































































