Grand period residence with extensive rooms and private gardens for large households.
Grade II listed—restrictions on alterations and potential complications
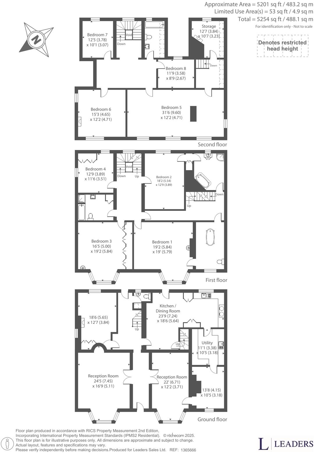
Kiltearn House is an impressive, Grade II listed detached family residence occupying a very large plot in central Nantwich. Thoughtfully preserved period details — high ceilings, Georgian bay windows and exposed beams — give the home strong character and generous principal rooms across three floors. With eight bedrooms, four reception rooms and approximately 5,308 sq ft, the house suits a large or multi-generational family seeking space and presence in town.
The location balances central convenience with private garden grounds and off-street parking including a double garage. Local shops, cafés, cultural amenities and well-rated primary and secondary schools are all within walking distance, and mobile and broadband connectivity are excellent. Flood risk is low and the property is offered chain-free, which can speed a purchase.
Buyers should be aware this is a listed building, which will restrict alterations and may complicate refurbishment or extension plans. The house may require maintenance and sympathetic updating in parts to meet modern living standards. Council tax is very expensive and the local area records higher crime levels, factors to include when considering running costs and security.
This is a rare town-centre family proposition for those who value historic character and generous accommodation. It offers immediate occupancy potential for large households while also presenting opportunity for considered restoration to enhance long-term value, provided purchasers are comfortable working within listed-building constraints.
4 bedroom house for sale in Welsh Row, Nantwich, CW5 — £590,000 • 4 bed • 2 bath • 2125 ft²
6 bedroom character property for sale in "Tudor House", Welsh Row, Nantwich, CW5 — £695,000 • 6 bed • 1 bath • 2500 ft²
5 bedroom character property for sale in Welsh Row, Nantwich, Cheshire, CW5 — £375,000 • 5 bed • 2 bath • 2494 ft²
3 bedroom town house for sale in Shoemakers House, Welsh Row, Nantwich, CW5 — £375,000 • 3 bed • 1 bath • 1220 ft²
6 bedroom terraced house for sale in Gaskell Avenue, Knutsford, WA16 — £975,000 • 6 bed • 2 bath • 2743 ft²
4 bedroom town house for sale in Welsh Row, Nantwich, CW5 5EW, CW5 — £695,000 • 4 bed • 3 bath • 2500 ft²


























































































