Spacious six-bedroom family home with sunny south garden and conversion potential.
Grade II listed Georgian mid‑terrace on quiet cul‑de‑sac
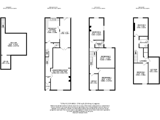
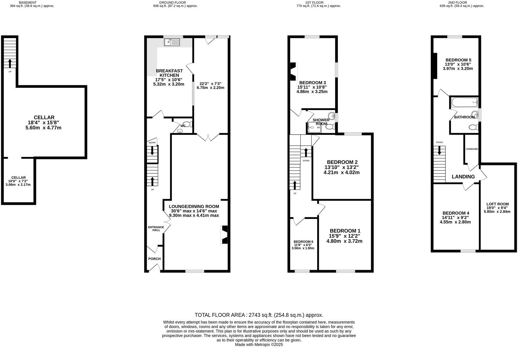
Over 2,700 sq ft across four floors, six bedrooms
South‑facing private rear garden, excellent for family use
Cellar and loft offer conversion potential, subject to consent
High ceilings and original period detailing throughout
Solid brick walls likely uninsulated; heating and insulation upgrade likely
Listed status restricts alterations and increases renovation costs
Local crime above average; council tax described as quite expensive
This substantial Grade II listed mid-terrace occupies a quiet cul‑de‑sac on Gaskell Avenue, a short walk from Knutsford’s shops, cafes and station. Over 2,700 sq ft across four floors, the house offers generous period reception rooms, a bright orangery and six bedrooms, making it well suited to a growing family or those wanting flexible space for home working.
Principal strengths include high ceilings, original detailing, a sunny south‑facing rear garden and useful off‑street permit parking. The cellar chamber and loft room present realistic scope to add living space, a home office or extra bathroom, subject to listed‑building consents and planning approval.
Buyers should note the property’s Grade II listed status will restrict alterations and require specialist consent and likely higher renovation costs. Parts of the house show dated decoration and some damp risk is possible in older brickwork; the solid brick walls are assumed uninsulated, so upgrading insulation and services may be needed. Council tax is described as quite expensive and the local area records higher-than-average crime — practical protections and insurance costs are considerations.
Overall this is a landmark town house in a highly desirable Knutsford location. It offers immediate comfortable living combined with clear scope to enhance value and space for a buyer prepared to invest in sympathetic refurbishment and listed‑building works.
4 bedroom detached house for sale in King Street, Knutsford, WA16 — £699,000 • 4 bed • 1 bath • 2347 ft²
3 bedroom semi-detached house for sale in Bexton Road, Knutsford, WA16 — £499,950 • 3 bed • 2 bath • 1342 ft²
4 bedroom end of terrace house for sale in Bexton Road, Knutsford, WA16 — £600,000 • 4 bed • 3 bath • 1327 ft²
4 bedroom semi-detached house for sale in Toft Road, Knutsford, WA16 — £995,000 • 4 bed • 3 bath • 2003 ft²
4 bedroom town house for sale in Mobberley Road, Knutsford, WA16 — £450,000 • 4 bed • 2 bath • 1500 ft²
4 bedroom detached house for sale in Central Knutsford, WA16 — £900,000 • 4 bed • 2 bath • 2812 ft²






































































































