Rare Grade II listed chapel with large garden and strong redevelopment potential in central Nantwich.
Grade II Listed former chapel and studio, rich original beams and fireplaces|Chain free sale with wide redevelopment potential|Approx 2,494 sq ft; 5 bedrooms and multiple reception rooms|Large established garden, outbuilding, disused shed and cellar|Shop-front frontage offers mixed residential/commercial use potential|Listed status and conservation area restrict alterations; consents required|Residential mortgage unlikely; cash or specialist finance recommended|On-street parking only; cellar has not been inspected
An uncommon Grade II Listed former chapel and studio on Welsh Row, offered chain free and rich in original character. Dating from the 16th century and extending to about 2,494 sq ft, the property combines historic features — exposed beams, original fireplaces and staircases — with a shop-front frontage and several reception rooms, creating clear scope for a bespoke residential scheme or mixed commercial/residential use.
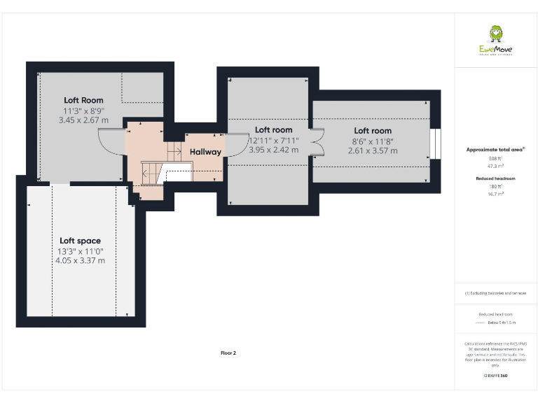
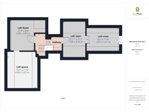
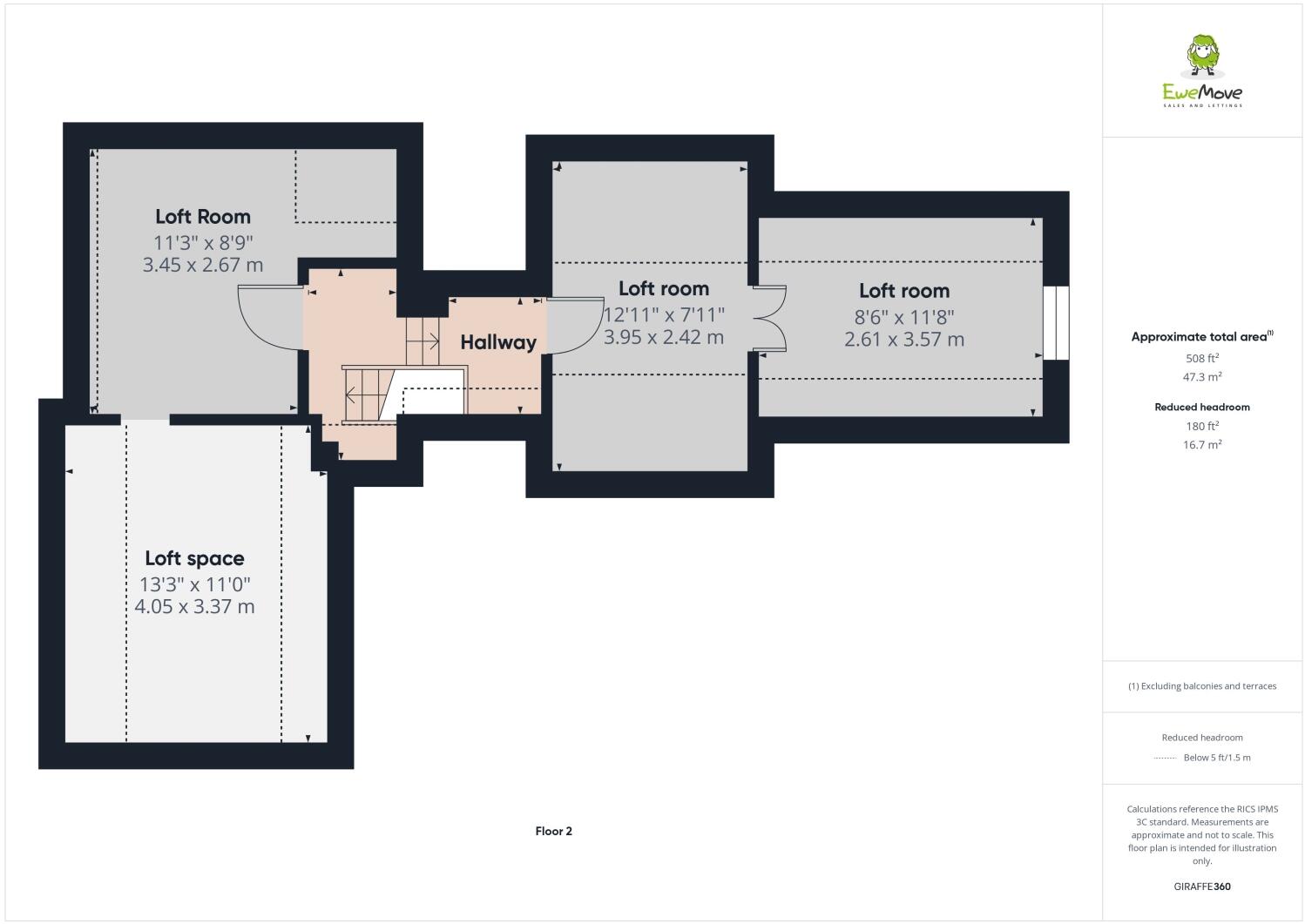
The layout currently provides 3–4 reception rooms, a studio space with cellar access, five bedrooms and two bathrooms over multiple floors, plus three loft rooms and substantial undeveloped loft space. A large established garden, attached outbuilding and disused shed add outdoor space and storage; a Grade II listed garden wall at the rear is an additional historic feature to retain.
This is a renovation and repositioning opportunity rather than a turnkey home. Grade II listing and conservation-area status will restrict alterations, and the property’s history and mixed-use elements mean residential mortgages may be difficult — purchasers should expect to need cash or specialist/commercial finance. The cellar has not been inspected and on-street parking is the only provision.
For the right buyer — developer, investor or buyer seeking a distinctive historic home in central Nantwich — the property offers genuine scope to create a striking, characterful residence or income-generating asset, subject to the usual listed-building consents and planning approvals.
6 bedroom character property for sale in "Tudor House", Welsh Row, Nantwich, CW5 — £695,000 • 6 bed • 1 bath • 2500 ft²
3 bedroom town house for sale in Welsh Row, Nantwich, Cheshire, CW5 — £395,000 • 3 bed • 1 bath • 1221 ft²
4 bedroom house for sale in Welsh Row, Nantwich, CW5 — £590,000 • 4 bed • 2 bath • 2125 ft²
4 bedroom town house for sale in Welsh Row, Nantwich, CW5 5EW, CW5 — £695,000 • 4 bed • 3 bath • 2500 ft²
2 bedroom apartment for sale in Welsh Row, Tannery House, CW5 — £275,000 • 2 bed • 2 bath • 1103 ft²
3 bedroom semi-detached house for sale in Welsh Row, Nantwich, Cheshire, CW5 — £550,000 • 3 bed • 1 bath • 1945 ft²


















































































































