BS39 5RD - 12 bed freehold development combo in Cooks Hill, BS39 5RD

View on Property Piper

12 bedroom semi-detached house for sale in House + Plot | Clutton, BS39

Summary - 90 Cooks Hill, Clutton BS39 5RD

12 bed 6 bath Semi-Detached

Large 0.57-acre plot with planning and refurbishment potential.
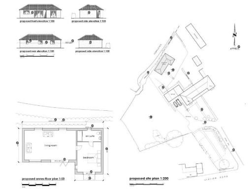
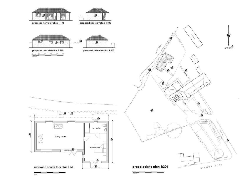
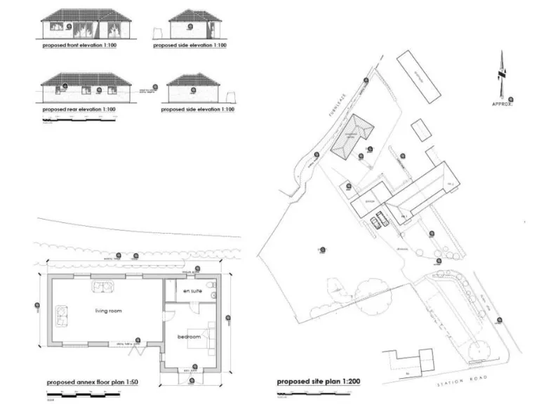
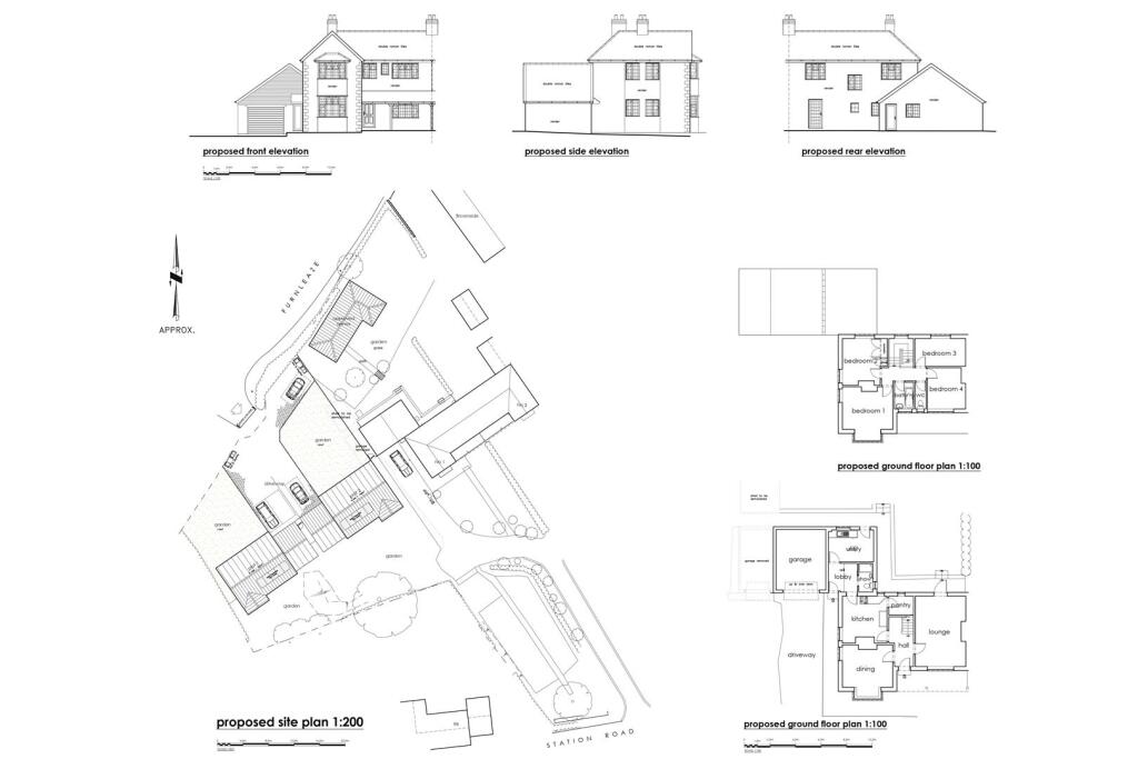
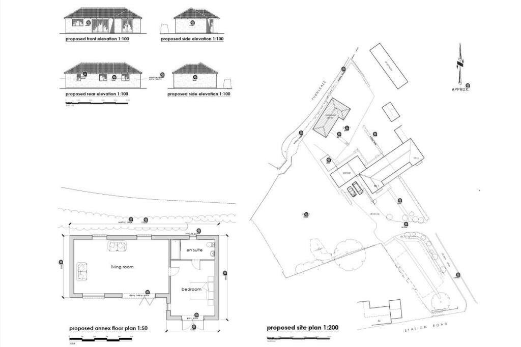
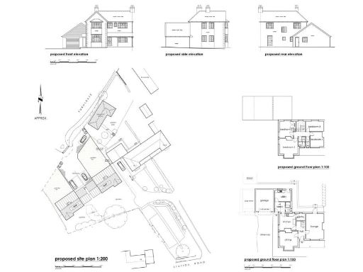
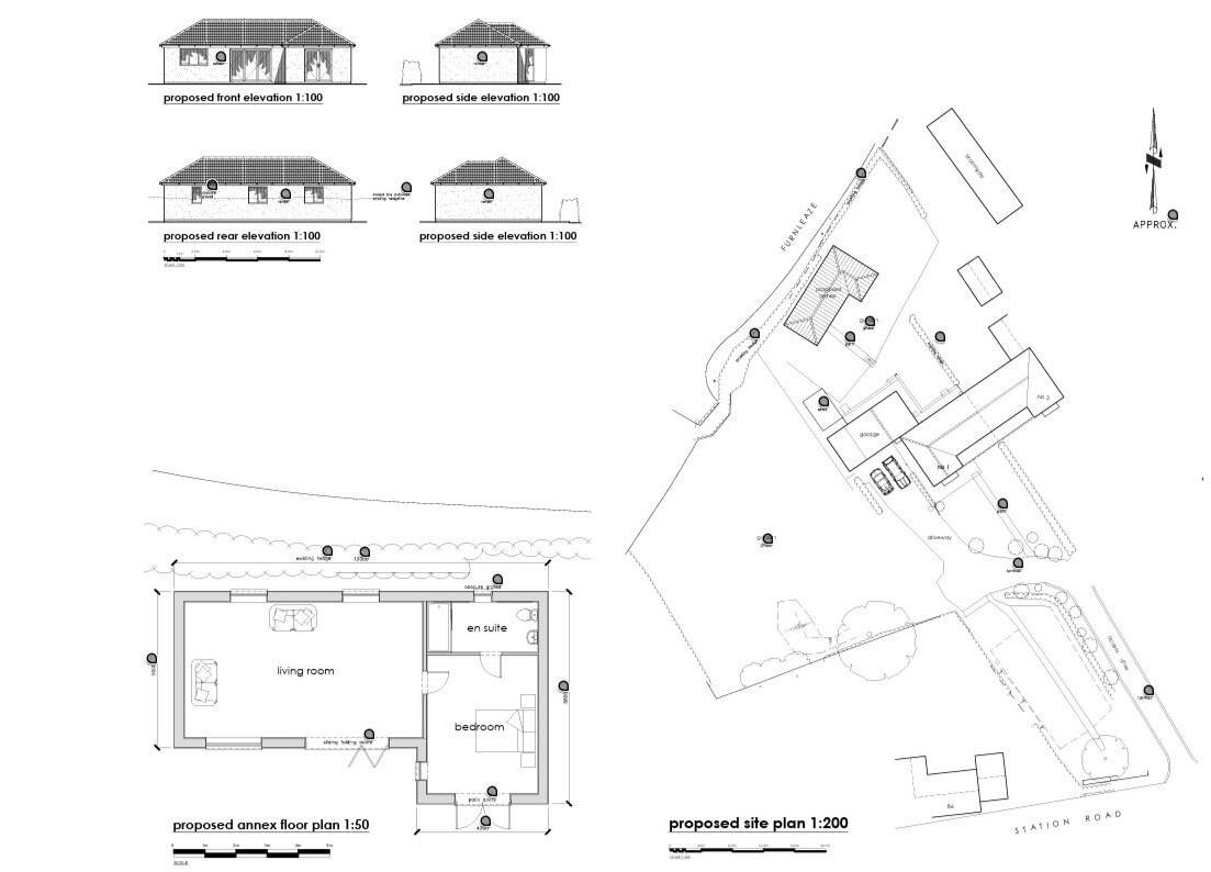
Planning granted for 2 x 4‑bed detached houses on adjacent plot
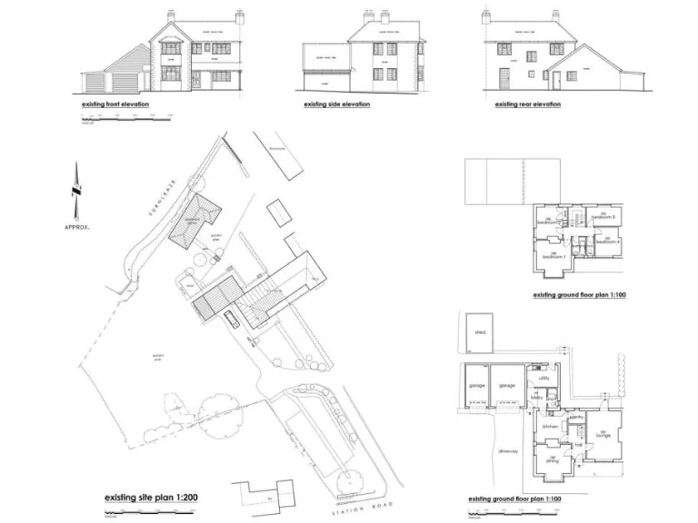
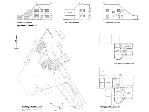
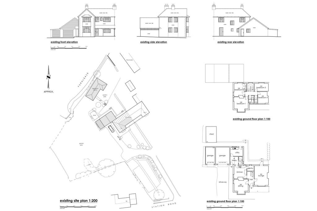
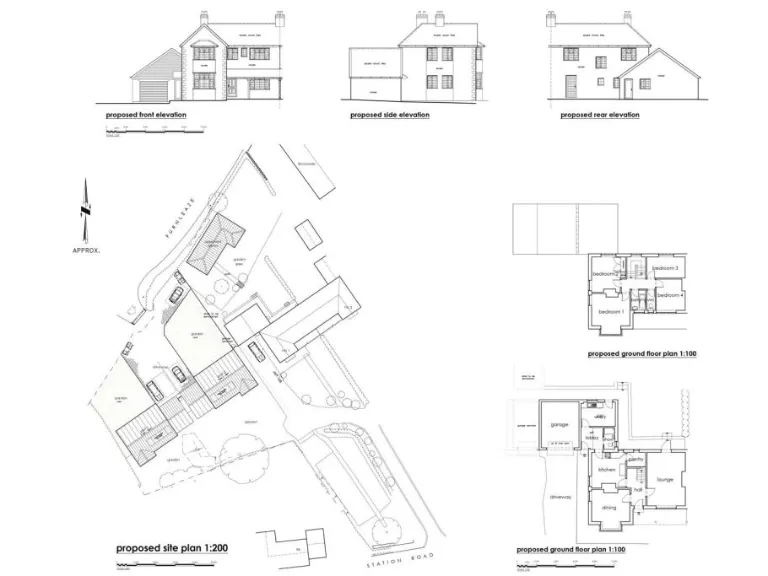
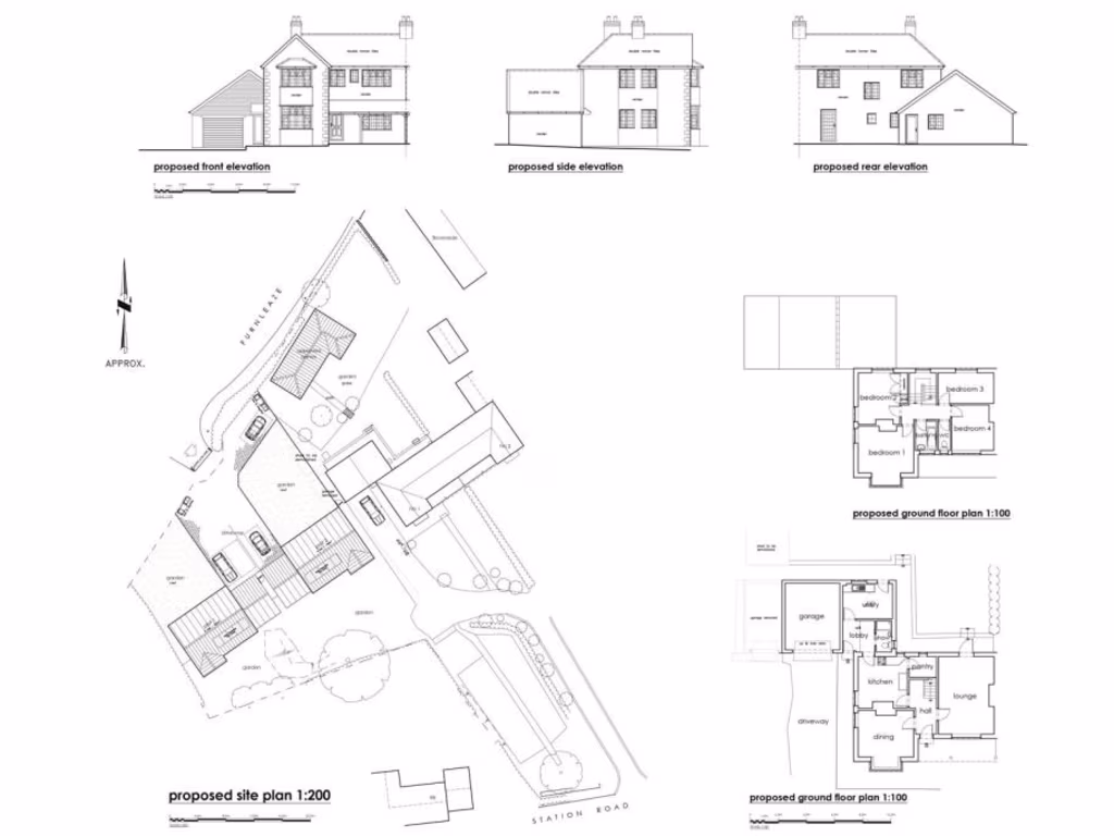
A substantial freehold development package in Clutton combining a 4-bedroom semi-detached house (approx. 1,860 sq ft) and a large adjacent building plot with planning permission for two 4‑bed detached homes. The site sits on about 0.57 acres with elevated, semi-rural outlooks, mature gardens to three aspects, a large garage/workshop and off-street parking. The house is sold with vacant possession and the annexe permission provides additional flexibility.

This is primarily for buyers seeking development or value-add opportunities. Full planning has been granted for 2 x 4-bedroom detached houses (outline) plus a full permission for a one‑storey detached annexe to the existing garden; new-builds will have independent access from Furnleaze. The main house requires updating throughout, offering scope to refit, extend (subject to surveys and consents) and improve EPC and interior layouts to maximise resale or rental value.

Buyers should note the property is offered at live online auction with an extended eight-week completion and a buyer’s premium of £1,800 (inc. VAT). The existing house carries an EPC rating of F and is described as needing renovation; walls are original stone without assumed insulation. Full legal and planning documentation is available in the online legal pack and should be reviewed before bidding.

For an investor or developer this package bundles immediate planning uplift with a refurbishment project. It’s suited to those prepared to manage renovation, comply with planning conditions and proceed via the auction timetable to realise the combined GDV potential.

Property Details

Brochure Descriptions

Image Descriptions

Floorplan Description

Rooms

Textual Property Features

Target Audience

AI Tags

Detected Visual Features

EPC Details

Nearby Schools

Nearest Bars And Restaurants

,,,,}

Nearest General Shops

,,}

Nearest Grocery shops

,,}

Nearest Supermarkets

,,}

Nearest Religious buildings

,,}

Nearest Medical buildings

,,,}

Nearest Airports

}

Nearest Leisure Facilities

,,,,}

Nearest Tourist attractions

,,}

Nearest Train stations

,,,,}

Nearest Bus stations and stops

,,,,}

Nearest Hotels

,,}

Tags

Local Market Stats

Similar Properties

Meta

High Res Images

Compatible Images

Low res Images

Thumbnails

Raw Images

High Res Floorplan Images

Compatible Floorplan Images

Low res Floorplan Images

FloorplanImages Thumbnail

Raw Floorplan Images