**Standout Features:**
- Spacious 2-bedroom mid-terraced house
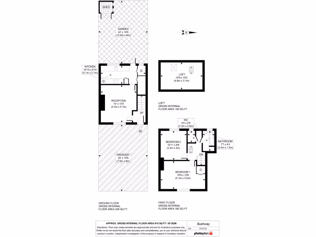
- Large private rear garden (approx. 42' x 19'9)
- Driveway with off-street parking (approx. 25' x 19'9)
- Generous reception room (14' x 13'5) and separate fitted kitchen
- Additional loft room (15'9 x 10'2) for storage or conversion potential
- Convenient location near public transport for city access
- Affordable council tax band (C)
- Modern double glazing and gas central heating
**Summary:**
This attractive 2-bedroom terraced home is perfect for young families and commuters alike, conveniently located near Wood Lane with easy bus links to Chadwell Heath Elizabeth Line station, facilitating swift journeys into the city. The property boasts a sizeable private rear garden, ideal for entertaining or relaxing outdoors, along with a generous driveway accommodating off-street parking. The spacious reception room and separate fitted kitchen provide comfortable family living, while the additional loft room offers versatile space for storage or a potential conversion.
Although the property showcases great potential, it may require some modernization, making it an ideal project for those looking to make their mark. In a vibrant urban area with a strong sense of community, this home is in proximity to several highly-rated schools, catering to the educational needs of your family. With council tax at an affordable band C and the potential for future renovations, this property offers a rare opportunity that won’t last long in today’s market. Envision your future here!
2 bedroom terraced house for sale in Chadway, Dagenham, RM8 — £375,000 • 2 bed • 1 bath • 756 ft²
3 bedroom terraced house for sale in Bonham Road, Dagenham, RM8 — £400,000 • 3 bed • 1 bath • 923 ft²
2 bedroom end of terrace house for sale in Babington Road, Dagenham, RM8 — £350,000 • 2 bed • 1 bath • 671 ft²
2 bedroom terraced house for sale in Homestead Road, Dagenham, RM8 — £385,000 • 2 bed • 1 bath • 818 ft²
3 bedroom terraced house for sale in Wood Lane, Dagenham, RM8 — £425,000 • 3 bed • 1 bath • 938 ft²
2 bedroom terraced house for sale in Rugby Gardens, Dagenham, RM9 — £350,000 • 2 bed • 1 bath • 720 ft²














































