Small, affordable 1-bed with long garden and driveway near District Line stations.
Chain-free ground-floor maisonette with private rear garden
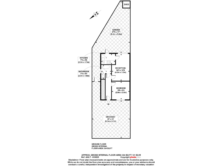
Chain-free ground-floor maisonette with a surprisingly long private garden and generous driveway, offering scope for improvement and strong commuter links. The accommodation includes a separate fitted kitchen, a 14'3" reception room and one bedroom, arranged in a traditional layout that is easy to adapt. 
Practical pros: gas central heating, double glazing and 103 years remaining on the lease keep running costs and tenure straightforward. Council Tax band A and relatively low annual service charge make the running costs affordable, while the EPC D indicates typical energy performance for its age.
Considerations: the total internal area is small (approx 334 sq ft) and the flat will suit a single person, couple or investor rather than a family. The property sits in a more deprived area, so buyers prioritising high-end finishes or premium neighbourhoods should note local socio-economic factors. Some cosmetic updating or refurbishment will likely be needed to modernise rooms and improve the EPC rating.
Well-located for Becontree and Dagenham Heathway stations, the maisonette offers a practical, low-cost entry onto the property ladder or a rental investment with outdoor space — attractive in this market for people seeking value plus outdoor amenity.
 1 bedroom maisonette for sale in Denny Gardens, Dagenham, RM9 — £200,000 • 1 bed • 1 bath • 497 ft²
 1 bedroom maisonette for sale in Denny Gardens, Dagenham, RM9 — £200,000 • 1 bed • 1 bath • 497 ft² 1 bedroom ground floor maisonette for sale in Joyners Close, Dagenham, RM9 — £260,000 • 1 bed • 1 bath • 465 ft²
 1 bedroom ground floor maisonette for sale in Joyners Close, Dagenham, RM9 — £260,000 • 1 bed • 1 bath • 465 ft² 1 bedroom maisonette for sale in Clementhorpe Road, Dagenham, RM9 — £220,000 • 1 bed • 1 bath • 641 ft²
 1 bedroom maisonette for sale in Clementhorpe Road, Dagenham, RM9 — £220,000 • 1 bed • 1 bath • 641 ft² 1 bedroom flat for sale in Cartwright Road, Dagenham, RM9 — £200,000 • 1 bed • 1 bath • 485 ft²
 1 bedroom flat for sale in Cartwright Road, Dagenham, RM9 — £200,000 • 1 bed • 1 bath • 485 ft² 1 bedroom maisonette for sale in Marlborough Road, Dagenham, RM8 — £220,000 • 1 bed • 1 bath • 382 ft²
 1 bedroom maisonette for sale in Marlborough Road, Dagenham, RM8 — £220,000 • 1 bed • 1 bath • 382 ft² 1 bedroom maisonette for sale in Halbutt Street, Dagenham, RM9 — £230,000 • 1 bed • 1 bath • 541 ft²
 1 bedroom maisonette for sale in Halbutt Street, Dagenham, RM9 — £230,000 • 1 bed • 1 bath • 541 ft²






































