Quarter‑acre plot with double garage and versatile outbuildings.
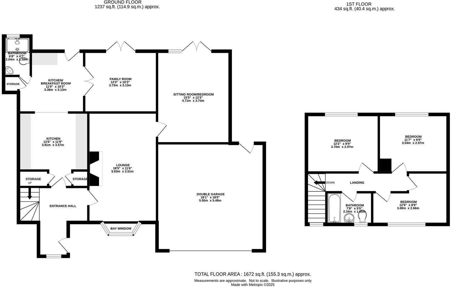
Spacious 1,672 sq ft family home with flexible reception areas
This generously proportioned family house sits in the picturesque hamlet of Chalk End, offering comfortable living across two floors and a substantial quarter‑acre plot. The ground floor provides versatile reception space – a large lounge with wood‑burner, a bright family room with French doors, a kitchen/breakfast area and a further reception that can serve as a fourth bedroom. Upstairs are three double bedrooms and a modern family bathroom.
Externally the mature, landscaped gardens and multiple outbuildings add considerable utility: use them as a home office, gym or storage. A double garage and wide shingle driveway deliver plentiful parking for family vehicles and visitors. The property benefits from countryside outlooks and the calm of a semi‑rural village, while Chelmsford is a short drive away for shops, stations and secondary schooling.
Practical points to note: heating is oil‑fired with a boiler and radiators (not on a community supply), the house was constructed in the late 1960s–1970s and may benefit from selective updating, and council tax sits above the local average. Broadband and mobile signal are adequate to good, and flood risk is low. These factors balance the home’s generous plot, flexible accommodation and attractive village setting.
Suitable for families seeking space, garden amenity and home‑working options, this home offers immediate comfort with scope to personalise and modernise. The large corner plot and outbuildings create potential for extensions, landscaping or new uses subject to planning.
4 bedroom detached house for sale in Marlen, Chelmsford Road, CM4 — £775,000 • 4 bed • 3 bath • 1300 ft²
4 bedroom detached house for sale in Loves Green, Highwood, Chelmsford, Essex, CM1 3QH, CM1 — £600,000 • 4 bed • 2 bath • 1306 ft²
4 bedroom detached house for sale in East View, Writtle, CM1 — £795,000 • 4 bed • 2 bath • 2003 ft²
4 bedroom detached house for sale in Back Road, Writtle, Chelmsford, CM1 — £1,100,000 • 4 bed • 3 bath • 2510 ft²
5 bedroom detached house for sale in Chalklands, Howe Green, Chelmsford, CM2 — £1,300,000 • 5 bed • 3 bath • 3210 ft²
4 bedroom detached house for sale in Longacre, Chelmsford, CM1 3BJ, CM1 — £495,000 • 4 bed • 2 bath • 1034 ft²






















































































































