Commuter-friendly flat with private garden and modern kitchen.
Two double bedrooms with high ceilings and period features
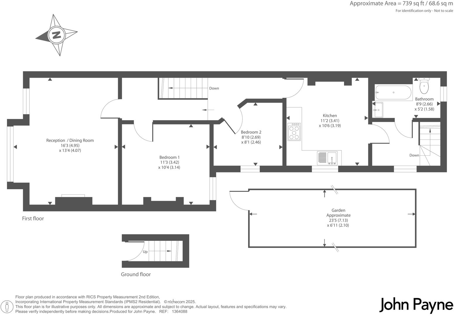
This bright two-bedroom Victorian first-floor maisonette combines period character with a modern fitted kitchen and bathroom. High ceilings and a spacious lounge give a sense of roominess, while an internal staircase leads down to a private rear garden — a rare outside space for a flat in the area.
Located moments from Hither Green station (about 10 minutes to London Bridge) and several highly rated schools, the home suits first-time buyers seeking commuter convenience and local amenities. The property is offered as share of freehold with 108 years remaining on the lease and no fixed service charge; external maintenance and buildings insurance are split 50/50 with the ground-floor flat when required.
Practical considerations: the building has solid brick walls with assumed no insulation, so upgrading thermal performance could be needed. There is a medium flood risk for the area and the lease length, while adequate for many buyers, is worth checking for longer-term plans. Overall living space is modest (around 739 sq ft), making this a good entry-level purchase or buy-to-let opportunity in a popular, well-connected neighbourhood.
2 bedroom maisonette for sale in Mount Pleasant Road, London, SE13 — £475,000 • 2 bed • 1 bath • 642 ft²
2 bedroom flat for sale in Manor Lane, Hither Green, London, SE12 — £500,000 • 2 bed • 1 bath • 849 ft²
2 bedroom flat for sale in Springbank Road, Hither Green , London, SE13 — £450,000 • 2 bed • 1 bath • 748 ft²
3 bedroom maisonette for sale in Knowles Hill Crescent, London, SE13 — £600,000 • 3 bed • 2 bath • 1007 ft²
1 bedroom flat for sale in Minard Road, London, SE6 — £300,000 • 1 bed • 1 bath • 568 ft²
2 bedroom flat for sale in Radford Road, London, SE13 6SA, SE13 — £325,000 • 2 bed • 1 bath • 645 ft²










































































