Characterful 2‑bed maisonette with garden, central location and clear renovation upside.
Private entrance and small garden for outdoor space
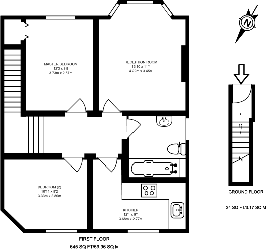
This spacious two-bedroom maisonette sits on Radford Road, SE13, offering 645 sq ft of flexible living across two levels. A private entrance and small garden provide independence and outdoor space, while period features such as bay windows and high ceilings add character. The whole flat has been recently repainted and is ready for immediate occupation or letting.
The layout includes a large reception room, separate fitted kitchen and a sizable family bathroom, with two well-proportioned bedrooms upstairs. The property presents clear potential for modernisation to increase value and comfort — good scope for kitchen and bathroom improvements and cosmetic updating throughout.
Practical details: leasehold with approximately 86 years remaining, service charge around £2,187.96 pa and ground rent approximately £200 pa. Permit on-street parking, fast broadband and excellent mobile signal suit commuters; local transport links provide straightforward access into Central London.
Considerations: the remaining lease length is shorter than ideal for some buyers and will affect mortgage options and future resale value unless extended. The area records above-average crime and the property sits in a deprived local area classification, which may concern some purchasers. On balance, this maisonette is a strong option for first-time buyers or investors seeking a period property with immediate rental or improvement potential in SE13.
2 bedroom maisonette for sale in Radford Road, Lewisham, London, SE13 — £400,000 • 2 bed • 1 bath • 595 ft²
2 bedroom flat for sale in George Lane, London, SE13 — £350,000 • 2 bed • 1 bath • 549 ft²
2 bedroom maisonette for sale in Leahurst Road, Lewisham, London, SE13 — £625,000 • 2 bed • 1 bath • 911 ft²
2 bedroom maisonette for sale in Mount Pleasant Road, London, SE13 — £475,000 • 2 bed • 1 bath • 642 ft²
3 bedroom maisonette for sale in Mount Pleasant Road, Hither Green , London, SE13 — £525,000 • 3 bed • 1 bath • 904 ft²
2 bedroom flat for sale in Theodore Road, Hither Green , London, SE13 — £525,000 • 2 bed • 1 bath • 843 ft²


































































