Spacious single-level living on a large, private plot with gated parking and garage.
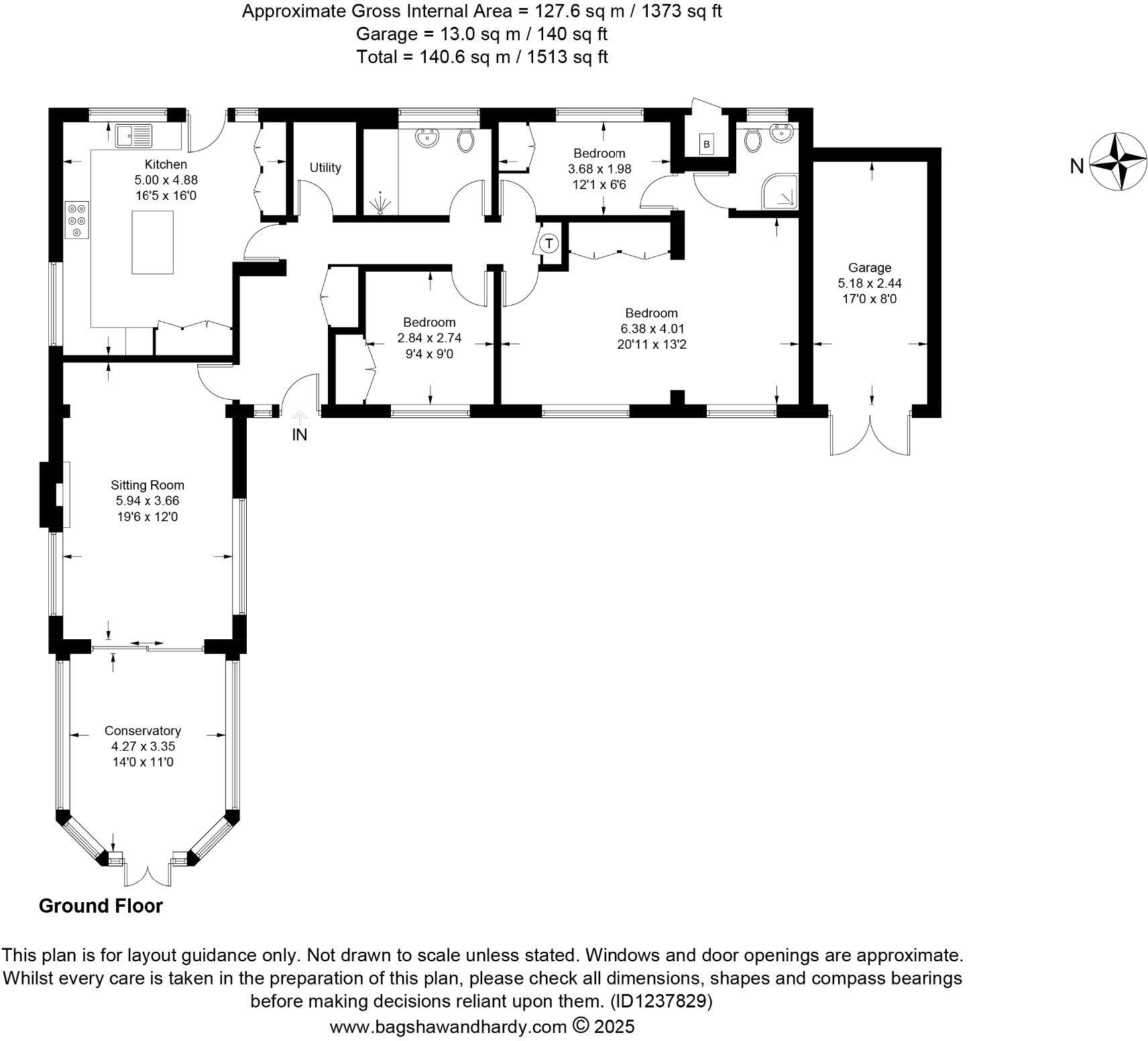
Three-bedroom detached single-storey bungalow with countryside views
Set on a generous quarter-acre plot in a tranquil Kentish hamlet, this three-bedroom detached bungalow offers single-level living with strong curb appeal. Light-filled reception rooms open onto a substantial conservatory and gardens that overlook farmland, creating a calm indoor–outdoor feel ideal for relaxed living and entertaining.
The accommodation is well presented throughout with a contemporary fitted kitchen, a sizeable master bedroom with en-suite, a utility room and a large reception room. A gated circular driveway provides parking for several cars and there is an attached garage. Mature trees and planted borders give good privacy and attractive rural outlooks.
Practical points to note: heating is oil-fired with a boiler and radiators, drainage is private, and broadband speeds are very slow — important for those who work from home. The house dates from the late 1970s/early 1980s and has partial cavity wall insulation; there is scope for modest modernisation or upgrading (windows are double glazed post-2002).
This property will suit downsizers or families seeking single-storey convenience in a countryside setting, and buyers who value plot size and privacy. Opportunities exist to improve energy efficiency and digital connectivity, and any extension or significant alterations would be subject to planning consent.
3 bedroom detached bungalow for sale in Palmers Brook, Hadlow, Tonbridge, TN11 — £650,000 • 3 bed • 2 bath • 1501 ft²
3 bedroom bungalow for sale in Mill Farm Close, Tunbridge Wells, TN3 — £550,000 • 3 bed • 2 bath • 966 ft²
3 bedroom detached bungalow for sale in Tinkerpot Lane, West Kingsdown, Sevenoaks, Kent, TN15 — £800,000 • 3 bed • 2 bath • 1292 ft²
4 bedroom bungalow for sale in Four Elms Road, Edenbridge, Kent, TN8 — £1,150,000 • 4 bed • 2 bath • 1622 ft²
3 bedroom bungalow for sale in Greenview Crescent, Hildenborough, Tonbridge, Kent, TN11 — £550,000 • 3 bed • 1 bath • 1390 ft²
3 bedroom detached bungalow for sale in Rectory Lane North, Leybourne, West Malling, ME19 — £775,000 • 3 bed • 2 bath • 1436 ft²


















































































































































