Spacious plot with garage and clear extension potential.
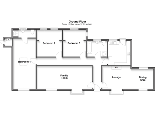
Detached three-bedroom bungalow with en-suite principal bedroom
Set on a very large, secluded plot in Tinkerpot Lane, this detached three-bedroom bungalow offers calm countryside living with mature gardens on all sides. The mid-20th-century home has spacious, well-proportioned rooms and an en-suite to the principal bedroom, making it comfortable for family life from day one. There is a detached garage, ample parking and an outbuilding, plus strong potential to extend or reconfigure subject to planning permission.
The property retains character features consistent with its 1930–1949 construction but will suit buyers prepared to update. The house has solid brick walls (assumed uninsulated), LPG-fired central heating, and double glazing installed before 2002; roof maintenance may be required. Broadband speeds are very slow and mobile signal is average — important for home workers or streaming households.
Practical points to note: council tax is described as quite expensive, and any extension or major alteration would need planning consent. The hamlet location delivers privacy and attractive National Trust-protected countryside nearby, while Sevenoaks and good schools are within a reasonable drive, making this a good choice for families who value space, outdoor living and future improvement potential.
This home is best for buyers seeking a roomy, private bungalow with scope to modernise and enlarge. It offers immediate liveability with clear routes to add value through insulation, modern services, and a sympathetic extension where planning allows.
3 bedroom semi-detached bungalow for sale in Hever Avenue, West Kingsdown, Sevenoaks, Kent, TN15 — £500,000 • 3 bed • 2 bath • 582 ft²
2 bedroom bungalow for sale in Bennetts Avenue, West Kingsdown, Sevenoaks, TN15 — £620,000 • 2 bed • 1 bath • 928 ft²
4 bedroom bungalow for sale in Hollywood Lane, West Kingsdown, Sevenoaks, Kent, TN15 — £670,000 • 4 bed • 2 bath • 2173 ft²
3 bedroom detached bungalow for sale in Nightingale Lane, Ide Hill, Sevenoaks, Kent, TN14 — £550,000 • 3 bed • 2 bath • 1368 ft²
5 bedroom detached bungalow for sale in The Grove, West Kingsdown, Sevenoaks, Kent, TN15 — £1,100,000 • 5 bed • 2 bath • 1314 ft²
4 bedroom bungalow for sale in Millfield Road, West Kingsdown, Sevenoaks, Kent, TN15 — £675,000 • 4 bed • 2 bath • 1402 ft²


































































































