IP8 4QL - Barn conversion for sale in Between Nettlestead & Somer…

View on Property Piper

Barn conversion for sale in Between Nettlestead & Somersham, Nr Ipswich, Suffolk, IP8

Summary - Between Nettlestead & Somersham, Nr Ipswich, Suffolk IP8 4QL

1 bed 1 bath Barn Conversion

**Standout Features:**
- Grade II listed barn in the scenic countryside.
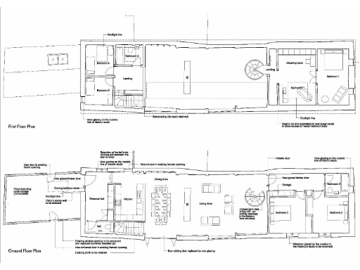
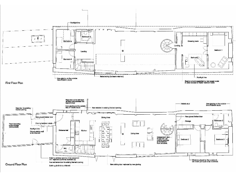
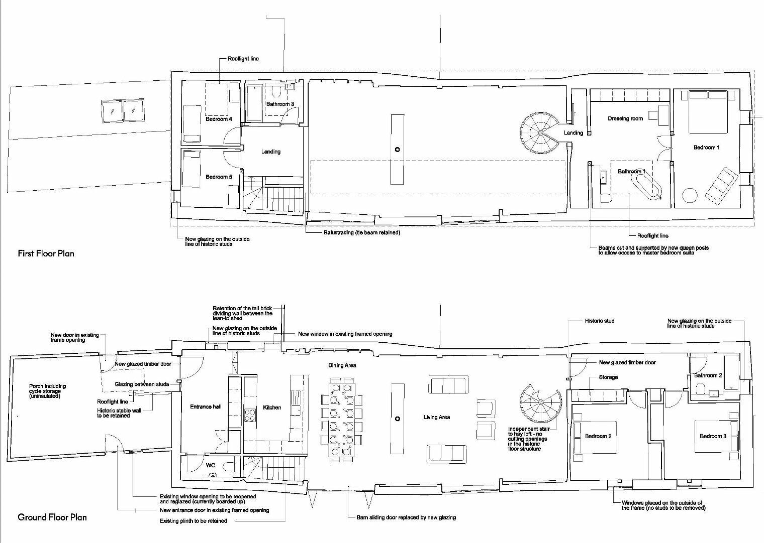
- Planning permission and Listed Building Consent for conversion into a five-bedroom dwelling.
- Expansive total area of approximately 2,600 sq ft (243 sqm).
- Off-street parking capacity for two vehicles.
- Proximity to facilities in the village of Somersham, including schools, shops, and parks.

**Potential Downsides:**
- Requires significant renovation and repair work.
- Listed status may complicate future modifications.
- Current broadband speeds are very slow; mobile signal is average.
- Structural concerns noted, with rust issues present in areas.

**Summary:**
Discover your dream home potential with this extraordinary Grade II listed barn located in the tranquil rural setting of Nettlestead, just minutes from the vibrant village of Somersham. Spanning a substantial 2,600 sq ft, this property comes with planning permission to transform it into a stunning five-bedroom residence, inviting you to create a unique living space tailored to your lifestyle. The high ceilings and rustic charm offer both character and the opportunity for a modern finish.

While the property does require extensive renovation and carries listed status that may limit certain changes, it presents a rare chance for buyers looking to invest in a fixer-upper project in an affluent area. Enjoy local amenities such as schools, pubs, and parks within the nearby village, while maintaining a sense of exclusivity amidst beautiful farmland. With the planning permission set to lapse in March 2025 if not acted upon, seize this unique opportunity today to craft your own countryside retreat!

Property Details

Brochure Descriptions

Image Descriptions

Floorplan Description

Rooms

Textual Property Features

Detected Visual Features

Nearby Schools

Nearest Bars And Restaurants

,,,,}

Nearest General Shops

,,}

Nearest Grocery shops

,,}

Nearest Supermarkets

,,}

Nearest Religious buildings

,,}

Nearest Medical buildings

,,,}

Nearest Leisure Facilities

,,,,}

Nearest Tourist attractions

,,}

Nearest Train stations

,,,,}

Nearest Bus stations and stops

,,,,}

Nearest Hotels

,,}

Tags

Local Market Stats

Similar Properties

Meta

High Res Images

Compatible Images

Low res Images

Thumbnails

Raw Images

High Res Floorplan Images

Compatible Floorplan Images

Low res Floorplan Images

FloorplanImages Thumbnail

Raw Floorplan Images