**Standout Features:**
- Grade II listed barn with planning permission for conversion
- Approval for a luxurious 5-bedroom home spanning approximately 2,600 sq ft
- Site size of 0.12 acres in a serene rural setting
- Attractive location near Somersham with access to local amenities
- Off-street parking for two vehicles
- Planning permission details are in place until March 2025
**Summary:**
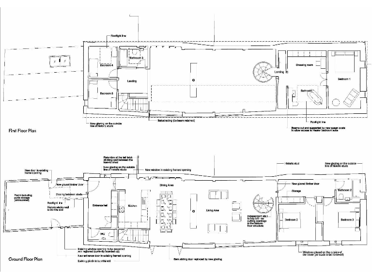
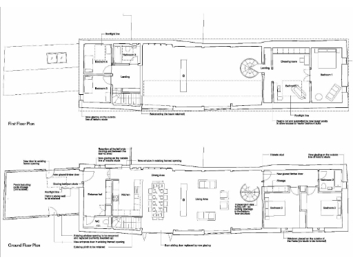
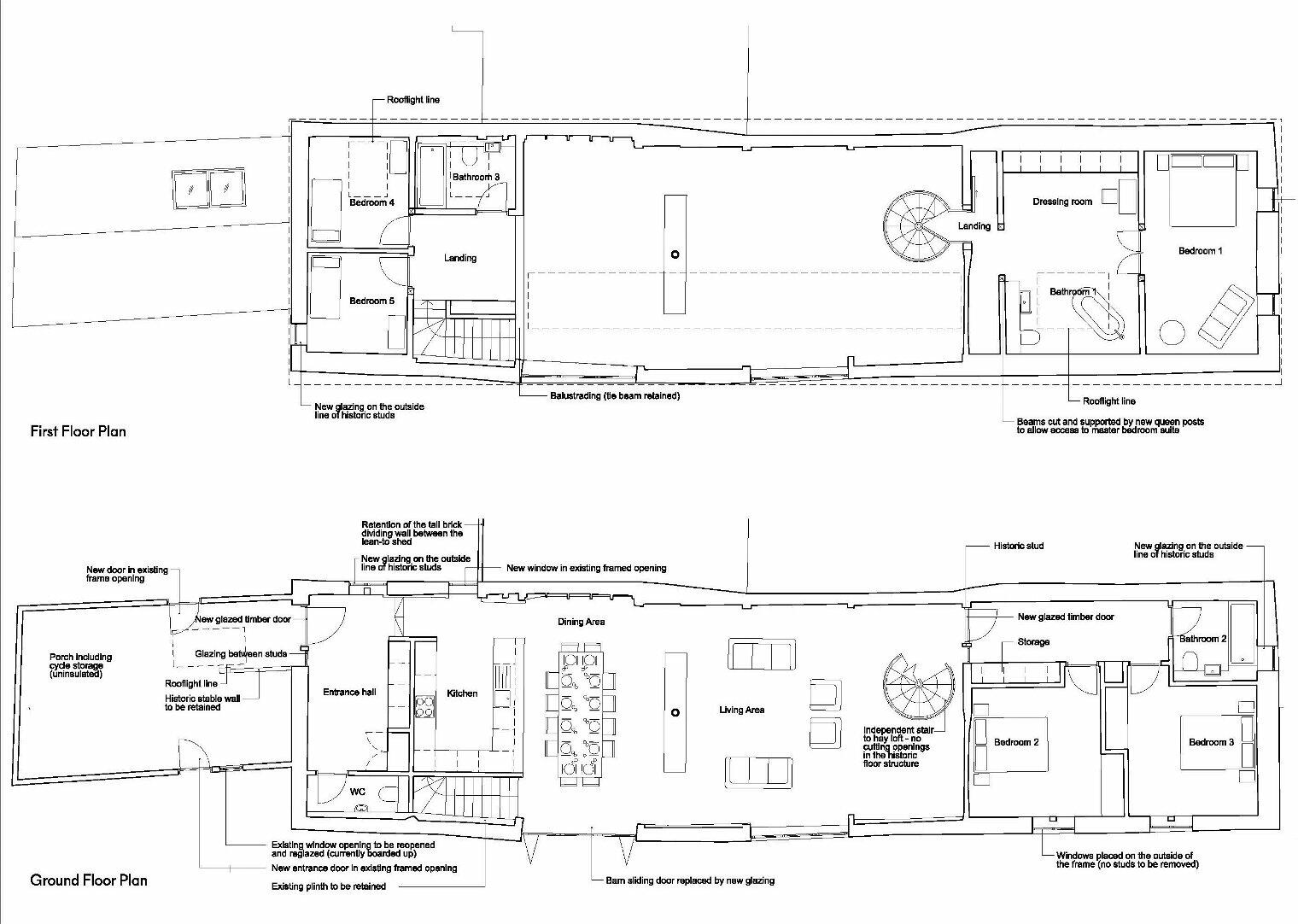
Discover the exceptional opportunity to transform a traditional Suffolk barn into a stunning five-bedroom home, nestled between the charming villages of Nettlestead and Somersham. With planning permission and listed building consent already granted, you can invest in a substantial 2,600 sq ft dwelling filled with potential—a serene escape in the enchanting Suffolk countryside. The proposed design boasts a double-height open plan living area, including a circular staircase, two ground floor bedrooms, and exclusive en-suite facilities on the first floor.
Enjoy convenient access to local amenities in Somersham, including a pub, primary school, and shops—all just a short drive away. While the barn requires renovation, the enticing opportunity for a bespoke home in this affluent, rural area invites you to imagine your ideal family retreat. Take advantage of this unique property while the plans remain valid until March 2025, as now is the perfect time to start realizing your vision of country living.
Residential development for sale in Stonham Aspal, Nr Debenham, Suffolk, IP14 — £250,000 • 1 bed • 1 bath • 4500 ft²
Residential development for sale in Between Nettlestead & Somersham, Nr Ipswich, Suffolk, IP8 — £250,000 • 1 bed • 1 bath • 2985 ft²
6 bedroom detached house for sale in Penlands House & Barn, Hadleigh (Lot 1), IP7 — £850,000 • 6 bed • 5 bath • 3428 ft²
Barn conversion for sale in Between Nettlestead & Somersham, Nr Ipswich, Suffolk, IP8 — £225,000 • 1 bed • 1 bath • 2600 ft²
5 bedroom barn conversion for sale in Combs Lane, Stowmarket, IP14 — £950,000 • 5 bed • 3 bath • 4302 ft²
4 bedroom detached house for sale in Helmingham, Suffolk, IP14 — £695,000 • 4 bed • 2 bath • 3881 ft²






























