IP6 8QF - 4 bed suffolk barn conversion in Mill Lane, IP6 8QF

View on Property Piper

4 bedroom detached house for sale in Creeting St. Mary, Ipswich, Suffolk, IP6

Summary - DOGWOOD HOUSE MILL LANE EARL STONHAM IPSWICH IP6 8QF

4 bed 2 bath Detached

Elevated Suffolk barn on a large plot with planning consent — ideal for countryside conversion..
4-bedroom detached converted barn with rustic character
Elevated position with idyllic farmland views
Planning permission granted for home with cart lodge (Ref 3599/15)
Includes developed office/studio known as the Cigar Shack
Very large private plot, ample outdoor and parking space
Excellent mobile signal; very slow broadband speeds
Part of original farmstead; other units available to purchase
Potential event/vehicle storage use subject to relevant consents
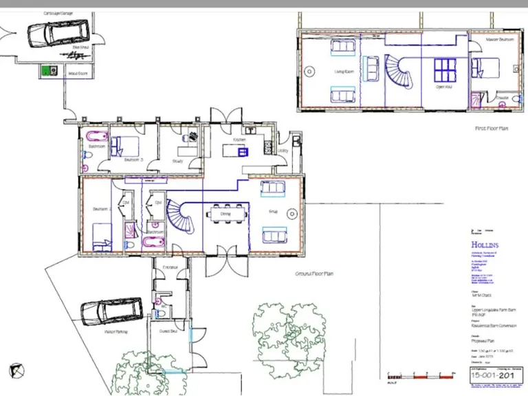
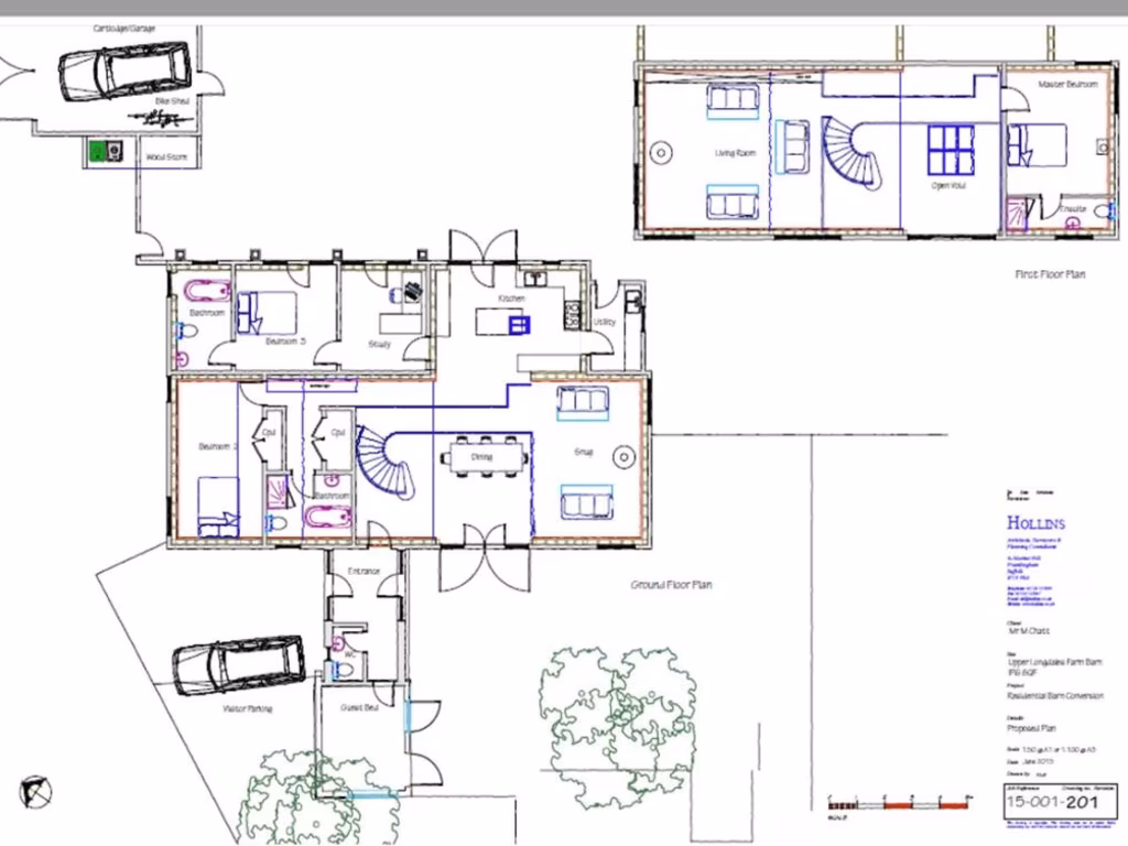
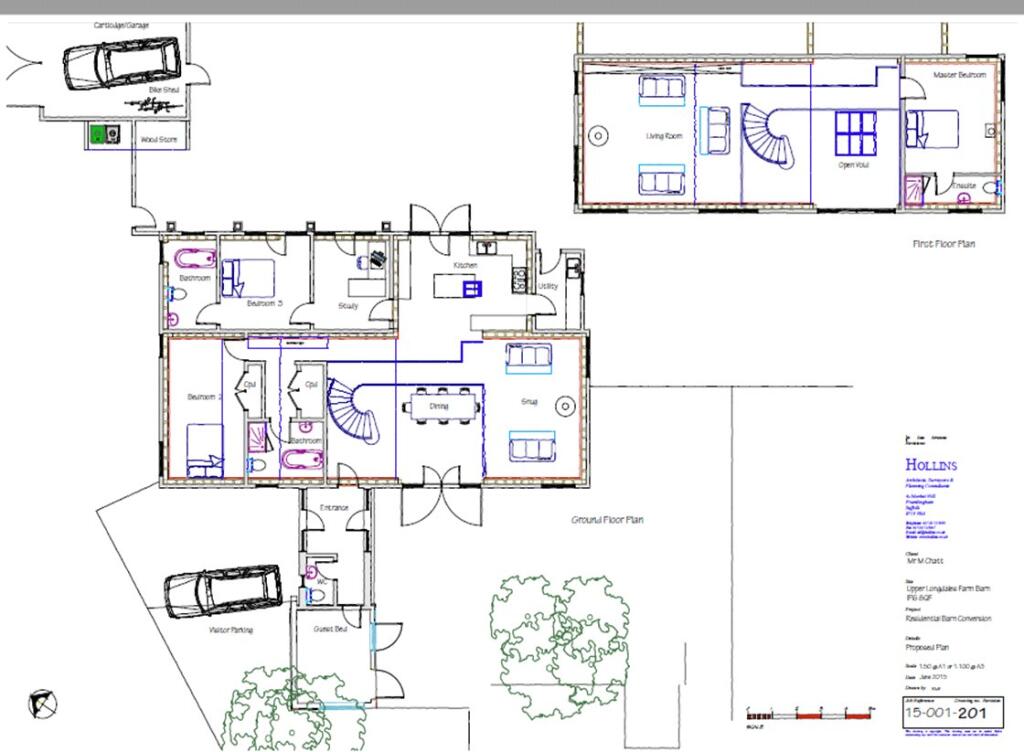
A fine traditional Suffolk barn set in an elevated position with uninterrupted views over unspoilt farmland. The converted barn retains rustic character, high ceilings and timber cladding, and already includes a developed office/studio known as the Cigar Shack. The site is freehold and sits on a very large plot, offering privacy and scope for outdoor uses and landscaping.

Planning permission has been granted for a home with a cart lodge (Reference No. 3599/15), making this property attractive to buyers seeking a conversion project with consent in place. The barn also offers flexible potential: a private family home, secure storage or classic car collection, or subject to further consents, an events or wedding venue.

Practical considerations are straightforward: mobile signal is excellent and crime is low, but broadband speeds are very slow — important if you need fast home internet. The barn forms part of an original farmstead that includes a bungalow and three cottages, available separately or as a whole, which could interest investors or purchasers seeking additional options.

This is a rural opportunity for buyers prioritising space, character and countryside life. The property will suit someone comfortable with a conversion or refurbishment mindset, and those who value privacy and expansive grounds over urban convenience.

Property Details

Image Descriptions

Textual Property Features

Target Audience

AI Tags

Detected Visual Features

Nearby Schools

Nearest Bars And Restaurants

,,,,}

Nearest General Shops

,,}

Nearest Grocery shops

,,}

Nearest Supermarkets

,,}

Nearest Religious buildings

,,}

Nearest Medical buildings

,,,}

Nearest Leisure Facilities

,,,,}

Nearest Tourist attractions

,,}

Nearest Train stations

,,,,}

Nearest Bus stations and stops

,,,,}

Nearest Hotels

,,}

Tags

Local Market Stats

Similar Properties

Meta

High Res Images

Compatible Images

Low res Images

Thumbnails

Raw Images