Spacious plot and garage, ideal for families seeking a renovation project..
Chain-free freehold on a large plot with extension potential (subject to permissions).|Detached oversized garage with power and light; double driveway for several cars.|Large front and rear gardens with ornamental pond and fruit trees.|Three bedrooms, family bathroom, through lounge/diner and large conservatory.|Mains gas boiler and radiators; double glazing (install date unknown).|Cavity walls assumed uninsulated — likely need for energy upgrades.|Local area shows higher crime and deprivation — consider neighbourhood factors.|Some cosmetic/refurbishment work likely to maximise value.
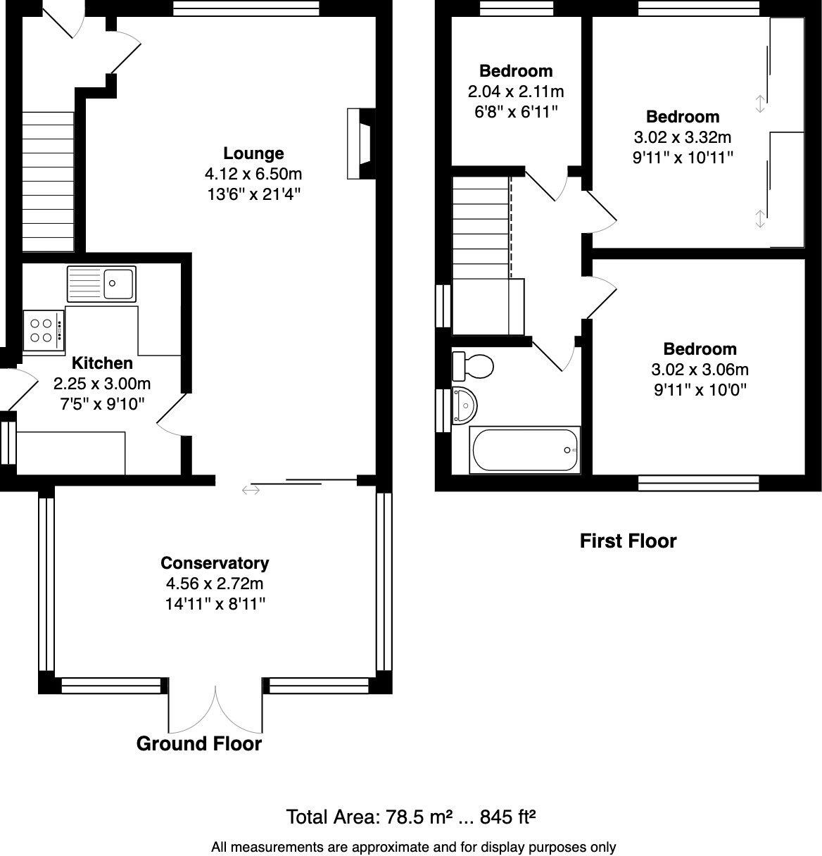
Set on a generous plot, this 1930s semi-detached home offers genuine extension potential (subject to planning) and off-street parking for several cars. The ground floor flows from an entrance hall to a through lounge/diner and a large conservatory, with a kitchen to the rear. Upstairs are three bedrooms and a family bathroom.
Outdoor space is a standout: a double driveway, detached oversized garage with power and light, and substantial front and rear gardens with lawns, an ornamental pond and fruit trees. The property benefits from mains gas central heating and double glazing (installation date unknown), is freehold and offered chain-free — attractive for buyers wanting a quicker move.
Practical considerations are clear: the house dates from the 1930s and cavity walls are assumed to be without added insulation, so energy upgrades may be needed. The area shows signs of deprivation and higher local crime rates than average; buyers should balance the excellent plot and extension scope against local social indicators. Some cosmetic and refurbishment work is likely to maximise the home's value.
Local amenities and primary schools are close by, and commuting links to Bradford and Halifax are convenient. This property suits families or buyers seeking a renovation project with substantial garden space and strong extension potential.
3 bedroom semi-detached house for sale in Farfield Grove, Wibsey, Bradford, BD6 — £185,000 • 3 bed • 1 bath • 764 ft²
3 bedroom bungalow for sale in Saxton Avenue, Wibsey, Bradford, BD6 — £239,000 • 3 bed • 1 bath • 786 ft²
3 bedroom semi-detached house for sale in Brownroyd Hill Road, Bradford, West Yorkshire, BD6 — £240,000 • 3 bed • 1 bath • 886 ft²
3 bedroom semi-detached house for sale in Moore Avenue, Bradford, BD6 — £295,000 • 3 bed • 1 bath • 990 ft²
3 bedroom semi-detached house for sale in Mandale Road, Horton Bank Top, Bradford, BD6 — £220,000 • 3 bed • 1 bath • 861 ft²
3 bedroom terraced house for sale in Harbour Crescent, Wibsey, Bradford, BD6 — £145,000 • 3 bed • 1 bath • 700 ft²






































































































