Move‑in ready three‑bed with large garden and strong local schools.
South‑facing extra‑large lawn and patio, generous outdoor space
Converted garage plus separate storage shed for parking or hobbies
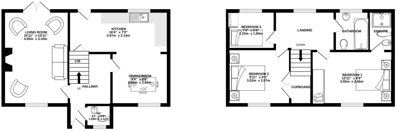
Open‑plan kitchen/diner with separate living room and downstairs WC
Master bedroom with en‑suite shower; family bathroom upstairs
New double glazing, gas central heating and full‑fibre broadband
Modest internal size (~638 sq ft); rooms are compact
Quiet cul‑de‑sac location with good local amenities and schools
Low flood risk, low crime and affordable council tax
Set back in a quiet cul‑de‑sac on the north side of Bridgwater, this three‑bedroom detached house is a neatly modern family home with a surprising outside space. The ground floor has been opened up to create a generous kitchen/dining area alongside a comfortable living room, with a downstairs WC for everyday convenience. The master bedroom benefits from an en‑suite shower plus a family bathroom upstairs.
The rear garden is a standout: extra‑large, south‑facing lawn and patio with side access, complemented by a substantial garage (converted from a car port) and a separate storage shed. Practical upgrades include new double glazing, gas central heating and full‑fibre broadband, so the property is move‑in ready and well suited to families who value space outside and good connectivity.
Location supports family life with a strong choice of nearby primary and secondary schools rated Good, local parks and play areas, and straightforward access to Bridgwater town centre, countryside and the M5. Low flood risk, low crime and affordable council tax add to the everyday appeal.
A few points to note: the overall internal size is modest (about 638 sq ft), so storage and room sizes are tighter than larger detached homes. The garage was converted from a car port — useful for vehicles or workshop space but not a newly built garage — and the ground floor layout is a slightly adapted plan rather than a full extension. These facts make the house particularly suitable for buyers seeking a well‑kept, low‑maintenance family home with great outdoor space rather than those needing very large interiors.
4 bedroom detached house for sale in 3 Earls Close, Bridgwater, TA6 — £325,000 • 4 bed • 3 bath
3 bedroom detached house for sale in Majestic Road, Bridgwater, Somerset, TA6 — £280,000 • 3 bed • 2 bath • 885 ft²
3 bedroom detached house for sale in Deal Close, Bridgwater, TA6 — £280,000 • 3 bed • 2 bath • 1208 ft²
3 bedroom detached house for sale in Clarks Road, Bridgwater, Somerset, TA6 — £245,000 • 3 bed • 1 bath • 800 ft²
3 bedroom semi-detached house for sale in 360a Bristol Road, Bridgwater, TA6 — £325,000 • 3 bed • 1 bath • 1540 ft²
3 bedroom town house for sale in Halyard Drive, Bridgwater, Somerset, TA6 — £230,000 • 3 bed • 3 bath • 1045 ft²


































































































































