Generous plot and garden with easy M5 and town access.
Three very large double bedrooms upstairs
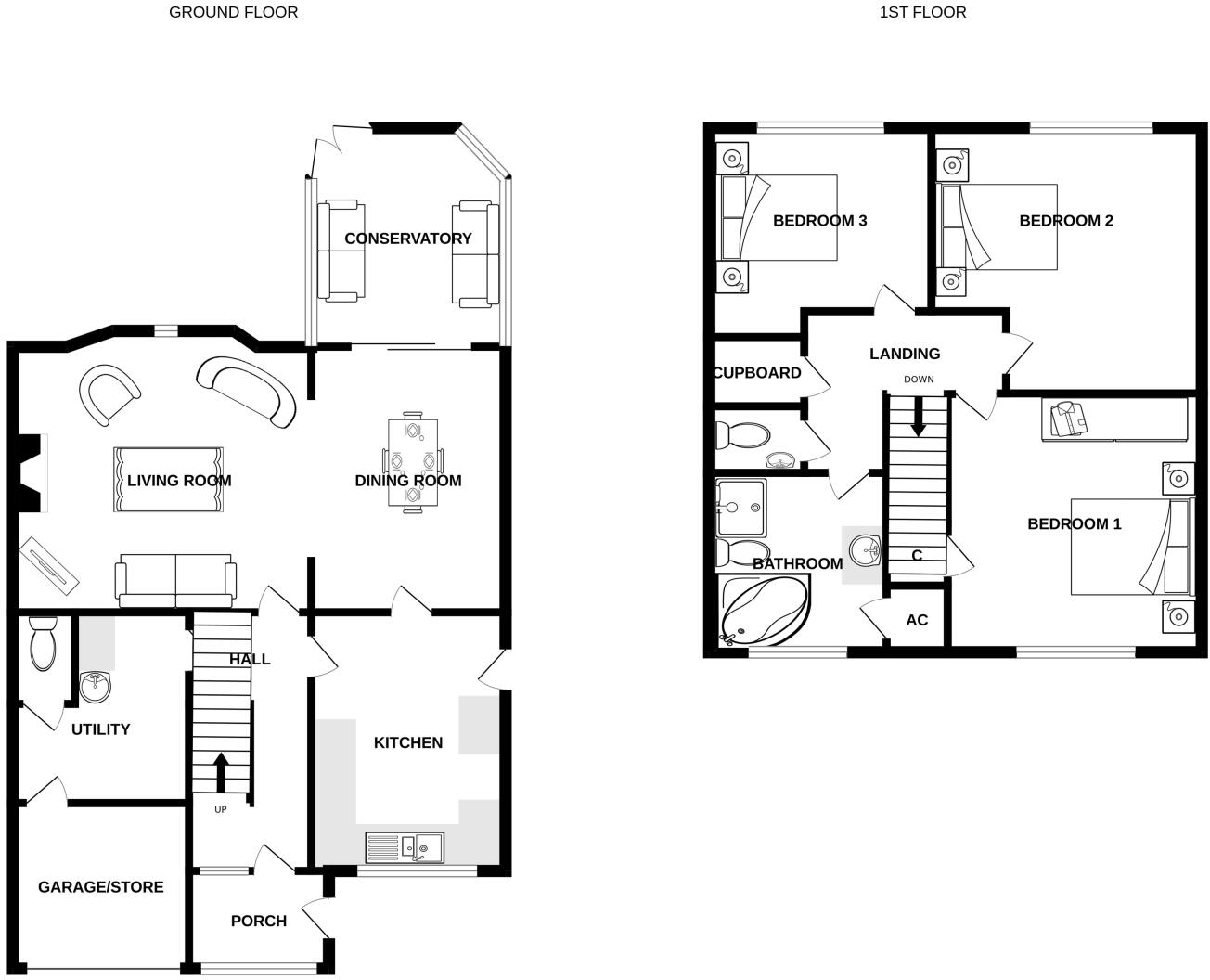
This deceptively large three-double-bedroom semi-detached house sits on a substantial plot on Bristol Road, offering generous living space across multiple levels and practical family features. The layout includes a living room, dining room, conservatory, kitchen, utility, ground-floor WC and a large four-piece upstairs bathroom plus an extra WC — useful for busy households. The garage has been partly converted to create a utility with remaining storage, and driveway parking fits around four vehicles.
The rear garden is a standout: patio and lawn areas, raised sun-deck, pond, summerhouse and sheds provide space for children, pets and outdoor entertaining. The property has many recent updates and is in good condition overall, with double glazing and gas central heating via a boiler and radiators. Local amenities, Good-rated schools and quick access to the M5 and public transport make this a convenient family location.
Practical considerations: broadband speeds are average and the area records above-average crime and relative deprivation compared with national figures — buyers should factor this into budgets and insurance. The house was built in the 1980s and, while well maintained, may offer further scope for cosmetic modernisation to personalise rooms. Early inspection is recommended to assess storage, layout flow and any specific update needs.
Freehold tenure, low flood risk and a decent plot size add long-term appeal, especially for families seeking generous rooms and outside space close to town and countryside links.
4 bedroom detached house for sale in 3 Earls Close, Bridgwater, TA6 — £325,000 • 4 bed • 3 bath
4 bedroom semi-detached house for sale in Holly Close, Bridgwater, TA6 — £315,000 • 4 bed • 1 bath
3 bedroom semi-detached house for sale in 100 Moorland Road, Bridgwater, TA6 — £245,000 • 3 bed • 1 bath • 1160 ft²
4 bedroom detached house for sale in Olivier Close, Burnham-on-Sea, TA8 — £385,000 • 4 bed • 3 bath
3 bedroom end of terrace house for sale in Butleigh Close, Bridgwater, TA6 — £209,950 • 3 bed • 1 bath
4 bedroom semi-detached house for sale in Alderney Road, Bridgwater, TA6 — £280,000 • 4 bed • 1 bath • 1421 ft²






















































































































































