Bright, flexible family home near town with garage and renovation potential.
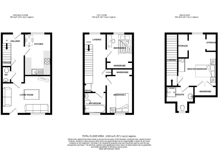
- Three double bedrooms including top-floor master with ensuite
- Approximately 1,045 sq ft over three storeys
- Private but small rear garden with patio and lawn
- Garage plus allocated parking space beyond
- Double glazing and mains gas boiler with radiators
- Needs renovation and cosmetic updating throughout
- Medium flood risk for the area; buyers should verify
- Mid-terrace: limited extension/outdoor expansion potential
Spacious three-storey mid-terrace townhouse offering three double bedrooms, two reception rooms and a garage. The layout includes a ground-floor WC, upstairs family bathroom and an ensuite to the top-floor master bedroom, arranged across approximately 1,045 sq ft. The property benefits from double glazing, mains gas central heating and an allocated parking space beyond the garage.
The rear garden is private but modest in size, with a patio and lawn that provide easy outdoor maintenance. Positioned close to Bridgwater town centre, local shops, schools (several rated Good) and countryside access, the home suits families or professionals seeking space near amenities.
Important practical points: the house needs renovation and some cosmetic updating throughout, and there is a medium flood risk for the area. The plot is small and the property is mid-terrace, so outdoor and extension potential is limited compared with detached houses. Buyers should commission their own surveys and flood checks before exchange.
For purchasers looking to add value, the three-storey plan and garage offer scope to modernise and reconfigure living spaces. The transport links, fast broadband and generally low crime and affluent local area support longer-term resale or rental prospects once updated.
3 bedroom end of terrace house for sale in Patricia Mews, Bridgwater, Somerset, TA6 — £259,000 • 3 bed • 1 bath • 1001 ft²
3 bedroom end of terrace house for sale in Halyard Drive, Bridgwater, Somerset, TA6 — £265,000 • 3 bed • 1 bath • 681 ft²
3 bedroom end of terrace house for sale in Meadowlands Avenue, Bridgwater, TA6 — £234,950 • 3 bed • 1 bath • 786 ft²
4 bedroom detached house for sale in 3 Earls Close, Bridgwater, TA6 — £325,000 • 4 bed • 3 bath
3 bedroom terraced house for sale in Sandown Close, Bridgwater, TA6 — £225,000 • 3 bed • 1 bath • 797 ft²
3 bedroom end of terrace house for sale in Ringwood Road, Bridgwater, TA6 — £229,950 • 3 bed • 1 bath














































































































