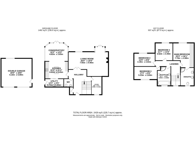
Spacious four-bedroom house with south garden and rural views, moments from village amenities.
- Southerly-facing garden backing onto open fields
- Detached double garage and driveway parking
- Four large double bedrooms plus home office
- Conservatory and new decked terrace for entertaining
- Lapsed planning permission to extend and link garage
- Built late 1970s/early 1980s; typical maintenance likely
- Partial cavity insulation assumed; energy works possible
- Council tax band described as quite expensive
Set in a peaceful location a short walk from Prestbury village, this substantial four-bedroom detached house occupies a large plot backing onto open fields. The ground floor offers flexible living with a dedicated home office, generous living room with French doors to a new decked terrace, and a kitchen that opens through to a sizeable conservatory — practical for everyday family life and entertaining. The southerly-facing rear garden and countryside views are standout features, providing good light and a private aspect.
Upstairs, the principal bedroom benefits from full-height fitted wardrobes and an en-suite; three further large double bedrooms and a family bathroom complete the first floor. The property includes a detached double garage and driveway parking for several vehicles. Built in the late 1970s/early 1980s, the house has double glazing installed after 2002 and is served by mains gas central heating.
There is clear potential to increase living space: lapsed planning permission exists to rebuild and link the garage to the house to create additional bedrooms, an ensuite and a dining room (refs 09/3071M and 10/0436M). Practical considerations include partial cavity wall insulation (assumed), typical maintenance for a house of this era and a council tax band described as quite expensive. Broadband speeds are fast but mobile signal is average.
Overall, the property suits buyers seeking a spacious, well-laid-out family house in an affluent village setting with scope for extension and value-add, while accepting some retrofit and running-cost considerations.
4 bedroom detached house for sale in Packsaddle Park, Prestbury, SK10 — £895,000 • 4 bed • 2 bath • 2618 ft²
4 bedroom detached house for sale in Oakwood Drive, Prestbury, Macclesfield, Cheshire, SK10 — £875,000 • 4 bed • 3 bath • 2337 ft²
5 bedroom detached house for sale in Willowmead Drive, Prestbury, Macclesfield, SK10 — £995,000 • 5 bed • 3 bath • 2632 ft²
4 bedroom detached house for sale in Willowmead Drive, Prestbury, Macclesfield, SK10 — £1,000,000 • 4 bed • 3 bath • 3100 ft²
4 bedroom detached house for sale in Oakwood Drive, Prestbury, Macclesfield, Cheshire, SK10 — £950,000 • 4 bed • 2 bath • 2659 ft²
4 bedroom detached house for sale in Bollin Grove, Prestbury, MACCLESFIELD, SK10 — £1,150,000 • 4 bed • 3 bath • 2700 ft²










































































































