Large five-bedroom detached house with valley views and generous outdoor space.
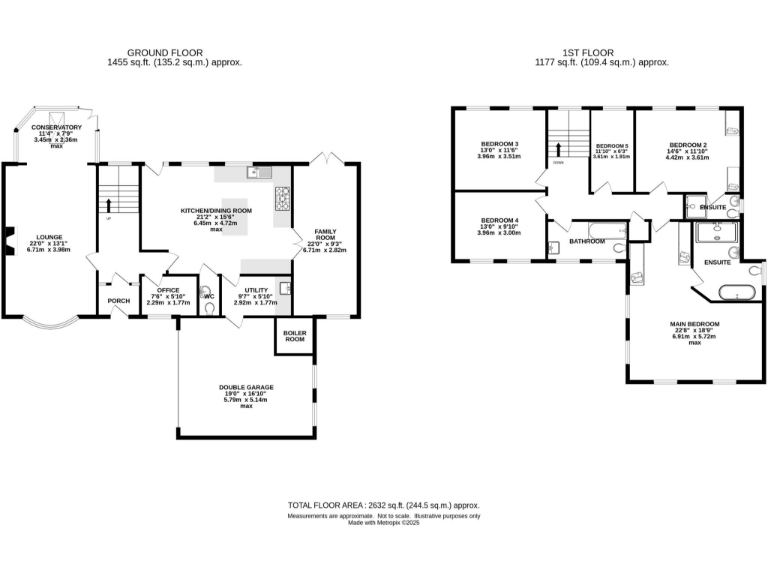
- Approximately 2,632 sq ft of extended family accommodation
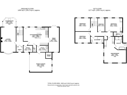
- Five well-proportioned bedrooms, two with en suites
- Westerly-facing private garden with large composite deck
- Integral double garage plus wide tarmac driveway and turning area
- Far-reaching views over Bollin Valley and Tytherington Golf Course
- Constructed 1983–1990; potential to modernise some elements
- Double glazing present but installation date unknown
- Council tax class is quite expensive; factor into running costs
Set on a generous plot in one of Prestbury’s most sought-after developments, this extended five-bedroom detached house offers spacious family living with far-reaching valley and golf-course views. The ground floor flows well for modern family life, with a bright dual-aspect living room and conservatory, a large open-plan kitchen/dining space with island and garden access, a separate family room and a useful study ideal for home working.
The principal bedroom benefits from dual-aspect views, a dressing area and a large en suite, while a second bedroom also has an en suite; three further bedrooms and a family bathroom complete the first floor. Practical features include an integral double garage, wide tarmac driveway with turning area, a private westerly garden with composite deck, and an internal utility room. Broadband speeds are fast and local schools are well regarded, making this an attractive family location.
The house is presented immaculately but was constructed in the 1983–1990 period; the double glazing install date is unknown. Council tax is described as quite expensive, which should be factored into running costs. Mobile signal is average in the area. Overall, the property offers immediate comfort combined with scope to update or personalise to taste while enjoying excellent local amenities and scenic views.
4 bedroom detached house for sale in Packsaddle Park, Prestbury, SK10 — £895,000 • 4 bed • 2 bath • 2618 ft²
4 bedroom detached house for sale in Bollin Grove, Prestbury, MACCLESFIELD, SK10 — £1,150,000 • 4 bed • 3 bath • 2700 ft²
4 bedroom detached house for sale in Holmlee Way, Prestbury, Macclesfield, SK10 — £1,250,000 • 4 bed • 3 bath • 2731 ft²
5 bedroom detached house for sale in Meadow Drive, Prestbury, Macclesfield, SK10 — £1,000,000 • 5 bed • 2 bath • 2300 ft²
5 bedroom detached house for sale in Heybridge Lane, Prestbury, Macclesfield, Cheshire, SK10 — £1,250,000 • 5 bed • 4 bath • 3178 ft²
5 bedroom detached house for sale in Macclesfield Road, Prestbury, Macclesfield, SK10 — £2,795,000 • 5 bed • 6 bath • 4892 ft²










































































































