Generous four-bedroom home in Prestbury with private gardens and garage.
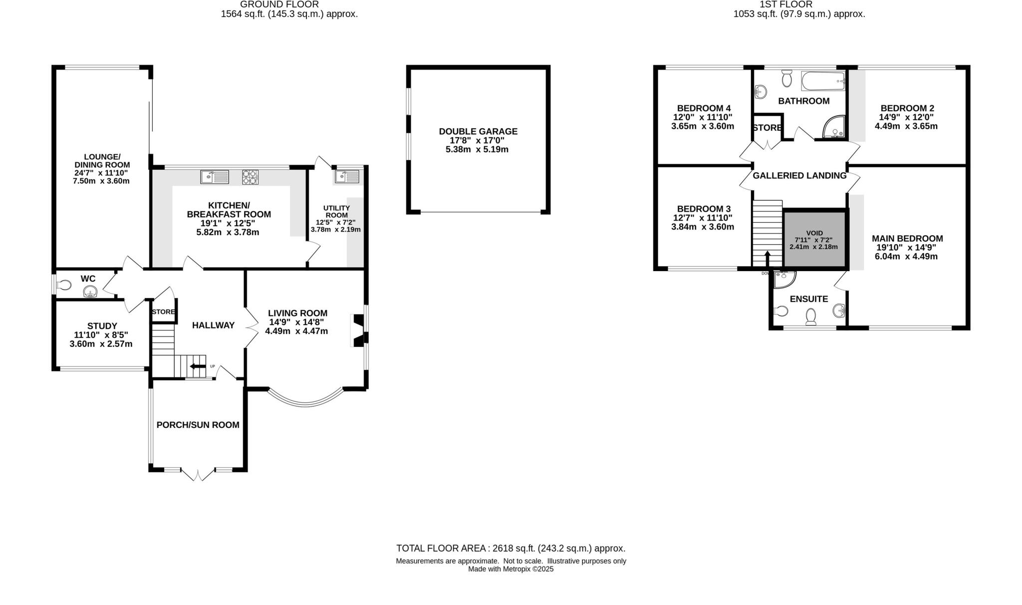
Spacious four-bedroom detached house with galleried reception hall
Short walk to Prestbury village and highly regarded local schools
Private, mature rear garden with paved terrace and lawn
Detached double garage plus double-width driveway parking
Modern kitchen and separate utility; versatile study/playroom
Two bathrooms; principal en-suite, family bathroom recently refitted
Freehold and no flood risk; excellent broadband and mobile signal
Council tax quite expensive; cosmetic updating likely desired
Set at the top of a quiet cul-de-sac in Prestbury, this detached four-bedroom home offers generous, well-proportioned accommodation across two floors. A galleried reception hall introduces the property and leads to a bay-fronted living room, a versatile study/playroom and a large extended lounge/dining space that opens toward the private rear garden.
The kitchen and separate utility are practical for family life, while four double bedrooms upstairs include a principal suite with fitted wardrobes and an en-suite. The recently refitted family bathroom has a walk-in shower. Overall the layout suits a family wanting comfortable, ready-to-live-in accommodation with scope for cosmetic updating rather than major reconstruction.
Outside, the house sits on a large, mature plot with a paved terrace and well-kept lawn framed by established planting. A double-width driveway and detached double garage provide ample parking and storage. Broadband and mobile signal are excellent, and there is no flooding risk.
Location is a key asset: it’s a short walk to Prestbury village and close to highly regarded schools, leisure amenities and golf. Note the property is offered freehold; council tax is quite expensive, and while the home is well maintained, buyers should expect typical modernisation and redecoration to suit contemporary tastes.
4 bedroom detached house for sale in Bollin Grove, Prestbury, Macclesfield, SK10 — £750,000 • 4 bed • 2 bath • 2000 ft²
4 bedroom detached house for sale in Peters Close, Prestbury, Macclesfield, SK10 — £995,000 • 4 bed • 2 bath • 2015 ft²
4 bedroom detached house for sale in Holmlee Way, Prestbury, Macclesfield, SK10 — £1,250,000 • 4 bed • 3 bath • 2731 ft²
5 bedroom detached house for sale in The Paddocks, Prestbury, SK10 — £1,200,000 • 5 bed • 4 bath • 2800 ft²
4 bedroom detached house for sale in Bollin Grove, Prestbury, MACCLESFIELD, SK10 — £1,150,000 • 4 bed • 3 bath • 2700 ft²
5 bedroom semi-detached house for sale in Meadow Hey, Bollin Hill, Prestbury, Macclesfield, SK10 — £875,000 • 5 bed • 3 bath • 2270 ft²


























































































