**Key Features:**
- Extensive woodland areas flanking the plot, enhancing privacy and ambiance
- Over 1 acre of land in a peaceful, elevated position
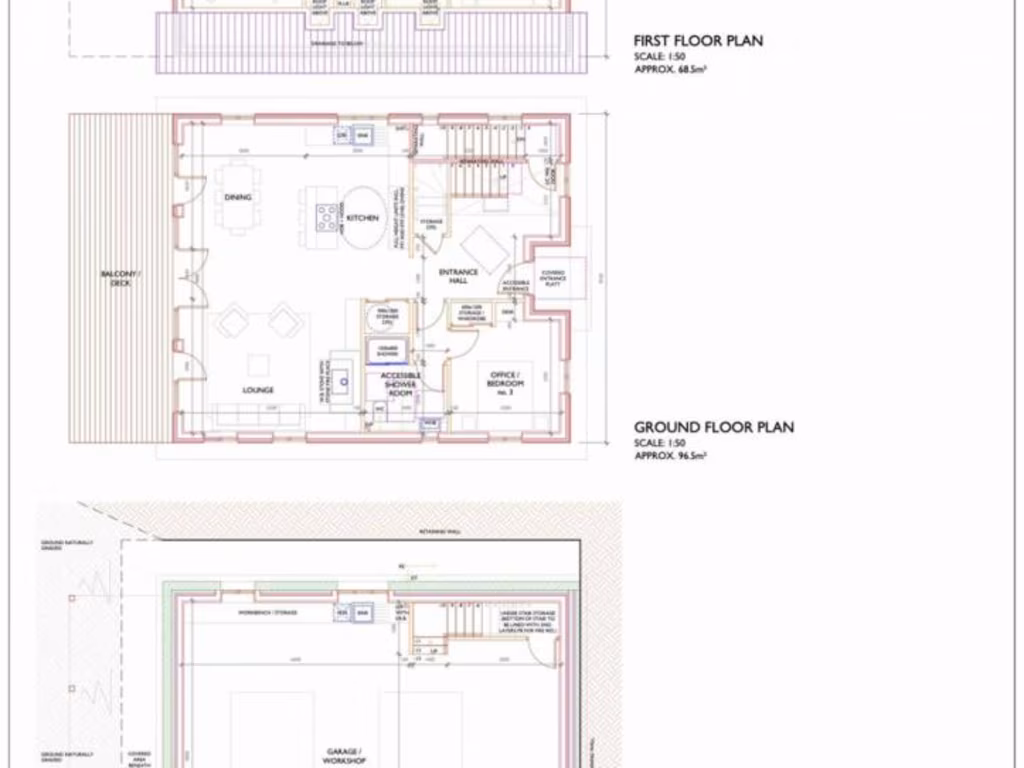
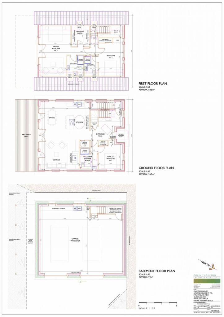
- Foundations laid for a spacious 4-bedroom detached home (total area: 264 square meters)
- Additional foundations for a garage/workshop (99 square meters)
- Full Planning and Building Warrant approval in place
- Two potential driveway access points for flexibility
This exceptional building plot in Cannich presents a unique opportunity for those looking to create their dream Highland retreat. Spanning over 1 acre and nestled within enchanting woodland, this spacious lot is less than a mile from the quaint village of Cannich, offering a blend of seclusion and convenience. Foundations have been thoughtfully laid for a generous 4-bedroom home, designed to take full advantage of breathtaking views across the River Glass.
With the approved planning and building warrant, coupled with dual access points, this property is primed for immediate development, making it perfect for families or investors with a vision for a serene residence or a lucrative holiday retreat. However, potential buyers should consider that while the location offers excellent mobile signal, broadband speeds may be slow. This property embodies the opportunity to cultivate a truly idyllic living environment in the Scottish Highlands, but act quickly—such an appealing plot rarely remains on the market for long!
Land for sale in Building Plot 95M West of Eastwood, Balnain, Drumnadrochit, IV63 6TN, IV63 — £130,000 • 1 bed • 1 bath • 2592 ft²
Land for sale in Land at Meall na Leachter, Culnakirk, Drumnadrochit, IV63 6XS, IV63 — £260,000 • 1 bed • 1 bath
4 bedroom detached house for sale in Cannich, Beauly, IV4 — £475,000 • 4 bed • 4 bath • 2199 ft²
3 bedroom bungalow for sale in Plot 1, Former Affric Hotel Site, Cannich, IV4 7LN, IV4 — £280,000 • 3 bed • 2 bath • 1029 ft²
3 bedroom bungalow for sale in Plot 2, Former Affric Hotel Site, Cannich, IV4 7LN, IV4 — £280,000 • 3 bed • 2 bath • 1004 ft²
Leisure facility for sale in Aigas Golf Course, Cottages, Steading Buildings and Land, Mains Of Aigas, Beauly, Highland, IV4 — £1,500,000 • 1 bed • 1 bath • 1615 ft²






































