**Standout Features:**
- Expansive 3.3-acre building plot
- Breathtaking south-facing views of Glen Urquhart
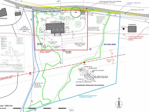
- Direct access from a public road, facilitating development
- Mains water supply nearby; electricity line crosses the site
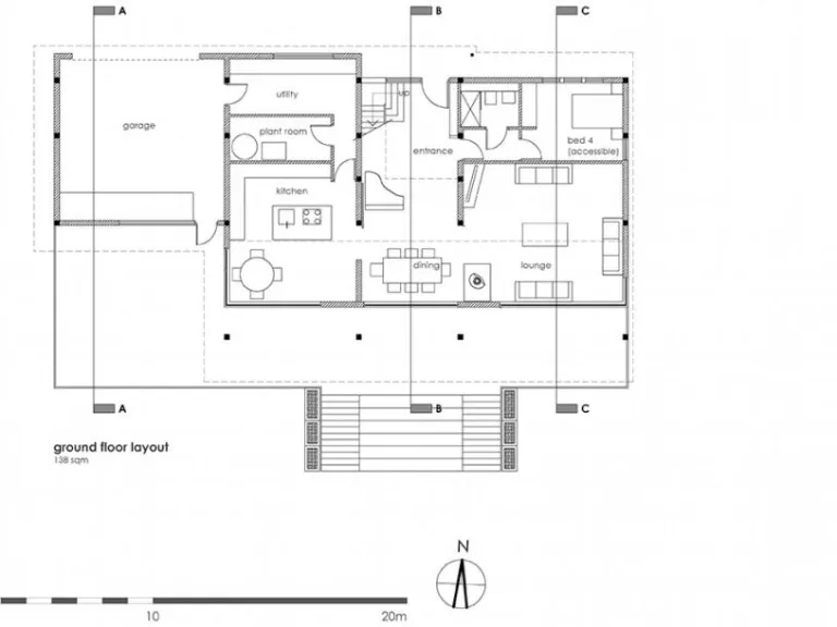
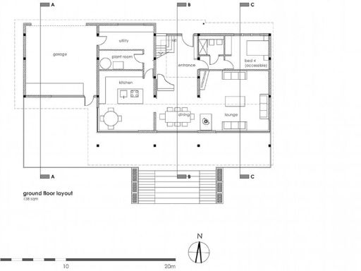
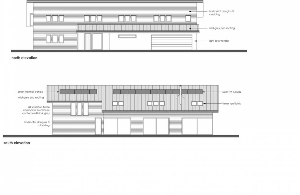
- Planning permission granted for a two-storey home (24/01837/FUL)
- Serene, private setting ideal for a countryside retreat
- Excellent mobile signal; limited broadband speed
**Potential Concerns:**
- New septic tank installation required
- Sewerage options remain undefined
- Area classified as very deprived, which may affect local amenities
Located just 22 miles from Inverness, this remarkable 3.3-acre building plot offers a unique opportunity to design a bespoke home in the heart of Scotland’s stunning countryside. With its south-facing orientation and the perfect blend of open grazing land and mature trees, you are guaranteed to enjoy both tranquility and breathtaking natural scenery. The plot has been granted planning permission for a two-storey house, providing a seamless entry point into your vision for a private rural retreat.
While the site benefits from direct access off a public road and utilities close by, prospective buyers should be prepared for the need to install a new septic tank. Given its location, drawing on local resources and amenities will be paramount, especially as the area is described as being very deprived.
This property has immense potential for families and investors alike—envision living in a serene environment, yet remaining connected to the charming Inverness community. Don’t miss out on this rare opportunity to create your dream home in an idyllic setting; the chance to build in such a coveted locale won't last long!
Plot for sale in Plot 2 Abriachan, Inverness, Highland, IV3 — £95,000 • 1 bed • 1 bath
Plot for sale in Plot at Bunloit, Drumnadrochit, IV63 — £150,000 • 1 bed • 1 bath
Land for sale in Land at Cannich (40m west of Strathglass view), Beauly, IV4 7LX, IV4 — £69,000 • 1 bed • 1 bath • 2843 ft²
Plot for sale in Plot 1 Abriachan, Inverness, Highland, IV3 — £95,000 • 1 bed • 1 bath
Land for sale in Land at Meall na Leachter, Culnakirk, Drumnadrochit, IV63 6XS, IV63 — £260,000 • 1 bed • 1 bath
Land for sale in Land At Pitkerrald - Lot 1, Pitkerrald Road, Drumnadrochit, Inverness, IV63 — £150,000 • 1 bed • 1 bath • 16146 ft²






























































