**Standout Features:**
- Character-filled Grade II Listed two-bedroom apartment
- Prime location on Tenterden High Street with easy access to local amenities
- Flexible accommodation with modern fitted kitchen and shower room
- Period features including attractive beams and large windows
- Leasehold with 151 years remaining
- Council Tax Band C; affordable rates
- Service charge and ground rent are moderate
**Potential Concerns:**
- Listed status may complicate renovations
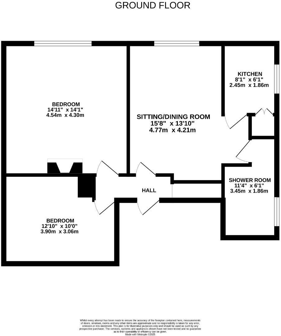
- Average room sizes but aptly laid out for functionality
**Summary:**
Step into your new home, an enchanting two-bedroom apartment nestled in the heart of Tenterden, boasting a delightful mix of period charm and modern convenience. With a modern kitchen featuring high-gloss cabinetry and integrated appliances, alongside a stylish shower room adorned with exposed brick, this property offers both character and elegance. The spacious living/dining area allows for ample natural light to flood in, showcasing the beautiful beams that are a testament to the apartment's heritage.
Located on the vibrant High Street, you’ll enjoy immediate access to a wealth of amenities, including shops, restaurants, and leisure options. Ideal for first-time buyers or investors, this apartment not only presents a unique lifestyle opportunity but also promises strong rental potential in an area recognized for its affluence and proximity to key transport links. Don’t miss this chance to secure a slice of Tenterden charm—properties like this one won’t stay on the market for long!
2 bedroom ground floor flat for sale in East Cross, Yewtree House East Cross, TN30 — £500,000 • 2 bed • 1 bath • 1037 ft²
3 bedroom maisonette for sale in East Cross, Tenterden, TN30 — £300,000 • 3 bed • 1 bath • 1408 ft²
2 bedroom flat for sale in High Street, Tenterden, Kent, TN30 — £200,000 • 2 bed • 1 bath • 711 ft²
3 bedroom flat for sale in Coombe Lane, Tenterden, TN30 — £299,950 • 3 bed • 1 bath • 980 ft²
2 bedroom apartment for sale in Tenterden, TN30 — £400,000 • 2 bed • 2 bath • 1023 ft²
2 bedroom flat for sale in West Cross, Tenterden, Kent, TN30 — £225,000 • 2 bed • 1 bath • 797 ft²






































