Ready-to-rent home with strong town-centre appeal for investor buyers.
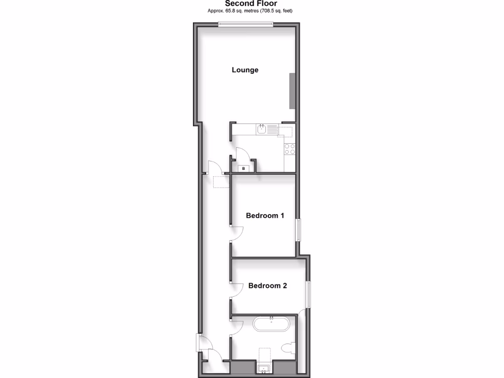
Second-floor apartment with rooftop and High Street views
A centrally located second-floor apartment overlooking rooftops and the High Street, this recently renovated two-bedroom flat is offered to investors with tenants in situ. The open-plan kitchen/lounge creates a sociable living space, while the stylish bathroom and contemporary finishes make it low-maintenance for a rental occupation.
Its position on Mockford Alley places cafes, shops and transport literally on the doorstep, supporting steady tenant demand in this affluent small-town location. At about 711 sq ft, the layout suits professionals or small households, and mains gas heating with a boiler and radiators provides conventional, familiar services for tenants.
Practical points for investors: the property is freehold and sold with tenants in situ, so purchasers should check tenancy terms, rental income and notice provisions before purchase. The building is solid brick (assumed no wall insulation) and the double glazing was installed before 2002, so consider future energy-efficiency works when planning longer-term maintenance or refurbishment budgets.
Overall, this apartment offers immediate rental income potential from a highly central Tenterden address, combined with recently completed cosmetic work that reduces short-term capital expenditure. Advisors should verify all tenancy, planning and building-regulation details as required.
2 bedroom apartment for sale in High Street, Tenterden, TN30 — £280,000 • 2 bed • 1 bath • 743 ft²
1 bedroom flat for sale in Oak House, Three Fields Road, Tenterden, TN30 — £250,000 • 1 bed • 1 bath • 553 ft²
2 bedroom apartment for sale in St. Benet's Way, Tenterden, Kent, TN30 — £275,000 • 2 bed • 2 bath • 851 ft²
2 bedroom flat for sale in West Cross, Tenterden, Kent, TN30 — £225,000 • 2 bed • 1 bath • 797 ft²
3 bedroom maisonette for sale in East Cross, Tenterden, TN30 — £275,000 • 3 bed • 1 bath • 1408 ft²
2 bedroom flat for sale in Tenterden, TN30 — £275,000 • 2 bed • 1 bath • 547 ft²










































